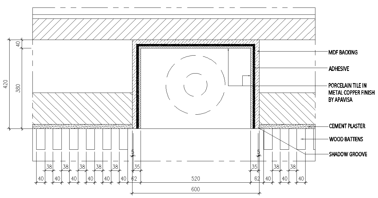
Mdf backing details with cement plaster , wood battens and shadow groove dwg autocad drawing .
Description
Discover the intricacies of MDF backing details with cement plaster, wood battens, and shadow groove in this detailed DWG AutoCAD drawing. Ideal for architects and interior designers, this 2D drawing provides precise dimensions and comprehensive labeling, ensuring accuracy and ease in your project implementation.The MDF backing details offer a sturdy foundation, enhanced by the smooth finish of cement plaster. The addition of wood battens brings a natural, textured element to the design, while the shadow groove adds depth and a sleek, modern touch. This combination is perfect for creating visually appealing and structurally sound interiors.This DWG file is an essential resource for professionals seeking detailed and reliable design solutions. The AutoCAD files provide clear, detailed CAD drawings, making it simple to integrate these elements into your projects. Elevate your design work with this expertly crafted combination of MDF backing, cement plaster, wood battens, and shadow groove.

Uploaded by:
Liam
White

