Public handicap washroom elevation design dwg autocad drawing .
Description
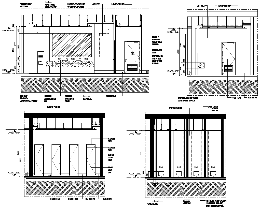
This AutoCAD DWG drawing showcases a meticulously designed elevation for a public handicap washroom, tailored to meet accessibility standards. The detailed illustration provides architectural clarity, focusing on key elements such as grab bars, accessible fixtures, and ample maneuvering space.Engineered with functionality in mind, this design supports inclusivity and compliance with ADA regulations, ensuring ease of use for individuals with disabilities. The layout emphasizes user comfort and safety, incorporating ergonomic features like accessible sinks and toilets.Architects and planners will find this drawing invaluable for spatial planning and construction documentation. It serves as a practical blueprint, guiding the implementation of essential features in public facilities.Optimize your design process with this comprehensive DWG file, ideal for urban development projects and ensuring that public spaces are accessible to all individuals. This resource facilitates seamless integration of accessibility principles into architectural planning and execution.
File Type:
DWG
File Size:
17.2 MB
Category::
Interior Design
Sub Category::
Architectural Bathrooms And Interiors
type:
Gold

Uploaded by:
Liam
White

