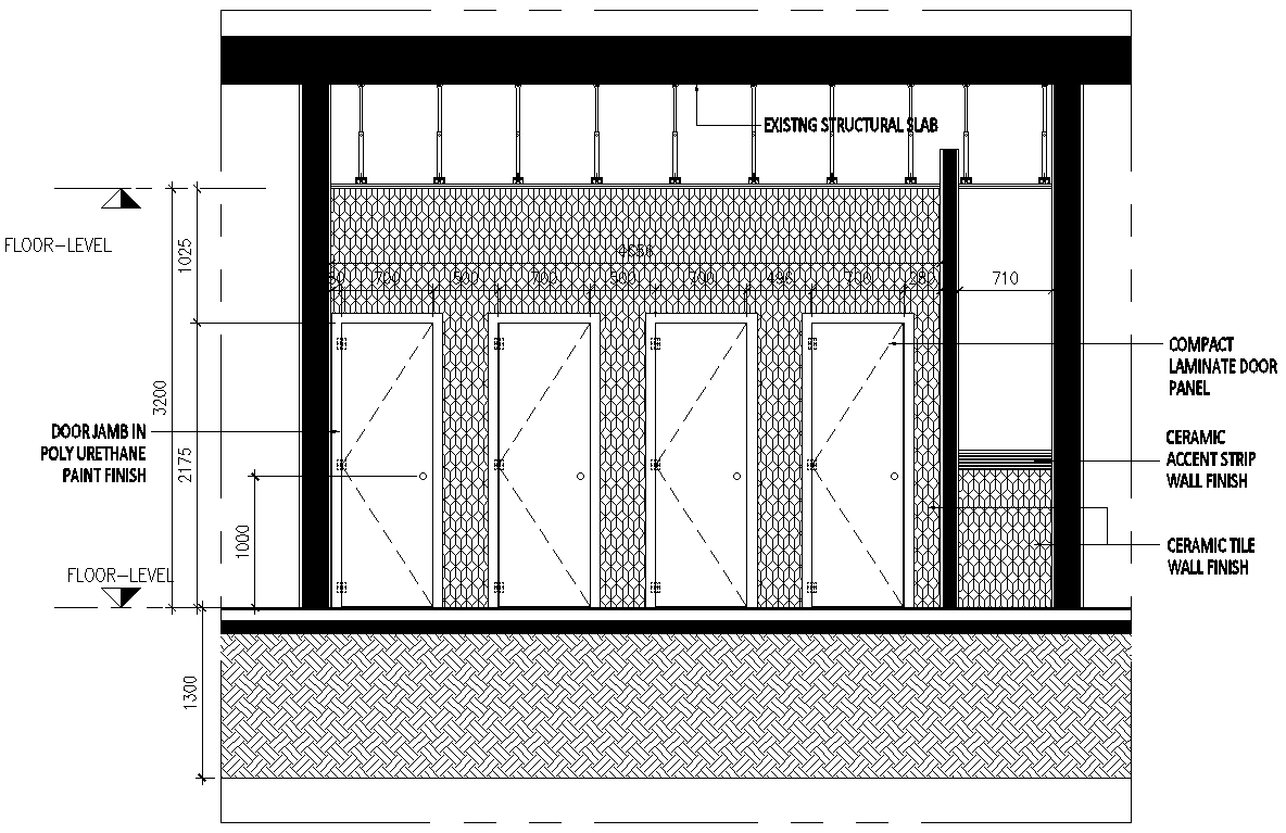
Door jamb in polyurethane paint finish details dwg autocad drawing .
Description
Discover the meticulous details of door jamb design finished with polyurethane paint through this AutoCAD DWG drawing. This resource provides architects and designers with precise specifications and dimensions necessary for integrating door jambs into architectural plans.The polyurethane paint finish enhances both the aesthetic appeal and durability of the door jamb, ensuring it complements various interior styles while withstanding daily wear and tear. This drawing serves as an essential tool for professionals seeking to optimize spatial planning and construction efficiency.Ideal for residential, commercial, or institutional projects, the DWG file facilitates seamless integration of door jambs into door installations, ensuring functionality and visual coherence. Architects and designers can leverage these detailed drawings to enhance their design processes and deliver spaces that are both practical and visually appealing.
File Type:
DWG
File Size:
17.2 MB
Category::
Dwg Cad Blocks
Sub Category::
Windows And Doors Dwg Blocks
type:
Gold

Uploaded by:
Liam
White

