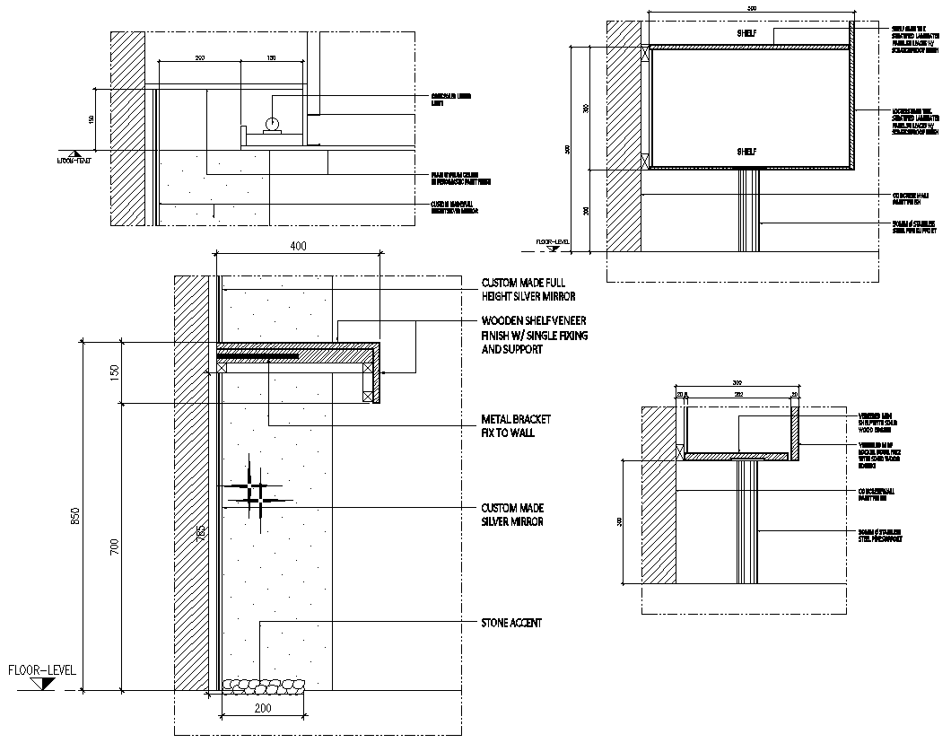
Wooden shelf veneer finishes with single fixing and supports dwg autocad drawing .
Description
Explore our meticulously crafted AutoCAD drawing featuring exquisite wooden shelf veneer finishes with single fixing and supports. Ideal for architects and designers seeking detailed 2D drawings, our CAD file showcases the elegance of wooden shelf structures with premium veneer finishes. Whether you're planning interior designs, furniture layouts, or architectural projects, our DWG file provides precise dimensions and construction details. Enhance your design process with accurate CAD drawings that highlight the beauty of wood grain and the functionality of single fixing supports. Download our CAD file today to integrate seamless wooden shelf solutions into your next project. Perfect for professionals in interior design, woodworking, and architectural visualization, our DWG file ensures precision and creativity in every detail.

Uploaded by:
Liam
White

