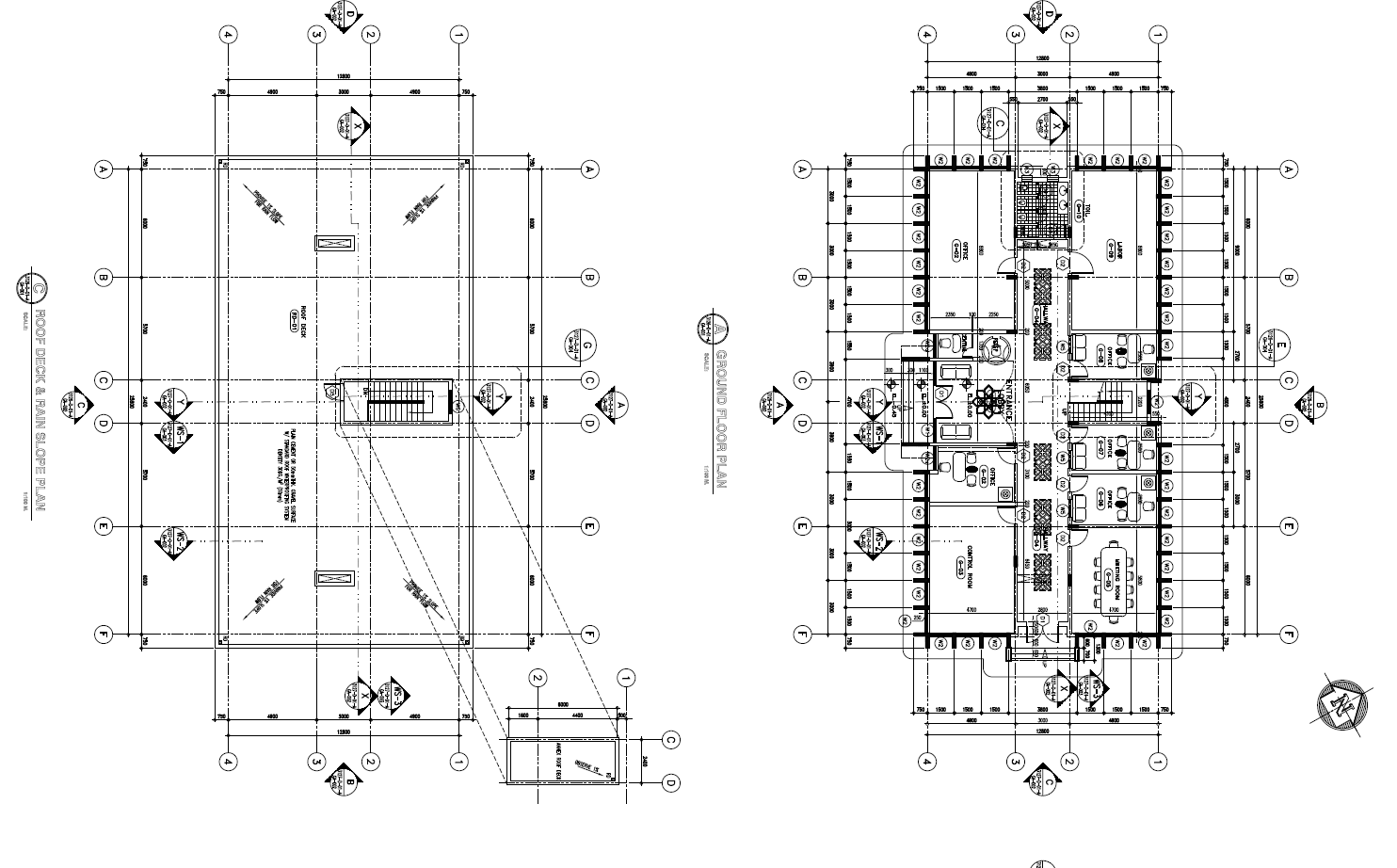
Office Building Layout plan detail
Description
Office Building Layout plan detail.
Find here architecture layout plan along of furniture detail, structure plan and construction detail of Office building project.
File Type:
DWG
File Size:
480 KB
Category::
Interior Design
Sub Category::
Corporate Office Interior
type:
Gold
Uploaded by:

