40ft to 46ft Ground Floor House Plan Design With 1 BHK Plan AutoCAD DWG
Description
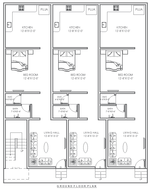
40ft to 46ft Ground Floor House Plan Design with 1 BHK layout in AutoCAD DWG download: Perfect for architects, builders, and homeowners who wish to utilize space efficiently. This detailed CAD drawing of a ground floor plan with 1 bedroom, hall, kitchen, and bathroom is well-thought-out and optimized for comfort and functionality. Every DWG file has a customizable feature so that you can adjust it for your needs and specifications. Be it a new construction project or renovation of an existing project; this high-quality, ready-to-use drawing will give you a better workflow and accuracy with your project. Now access these auto-cad files immediately and elevate your home design-making process to the next level.

Uploaded by:
Eiz
Luna

