Ground & First-Floor Slab Beam Layout Plan AutoCAD DWG File
Description
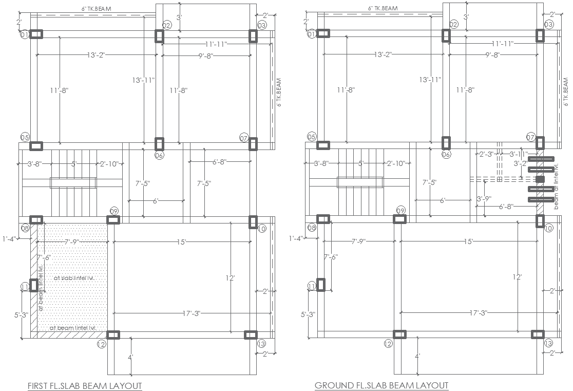
Download a detailed ground and first-floor slab beam layout plan in an AutoCAD DWG file format. This file offers precise structural details, including slab thickness, beam positioning, reinforcement detailing, and support columns. Perfect for structural engineers, architects, and builders, it aids in efficient planning and construction of residential and commercial buildings. The layout ensures structural integrity and optimal load distribution for multi-story buildings. Fully compatible with AutoCAD software, this DWG file allows for easy modifications to match project requirements. Utilize this detailed beam layout plan to enhance the strength and durability of your construction projects.

Uploaded by:
Eiz
Luna

