Duplex House Plan DWG File with Ground and First Floor Layout Design
Description
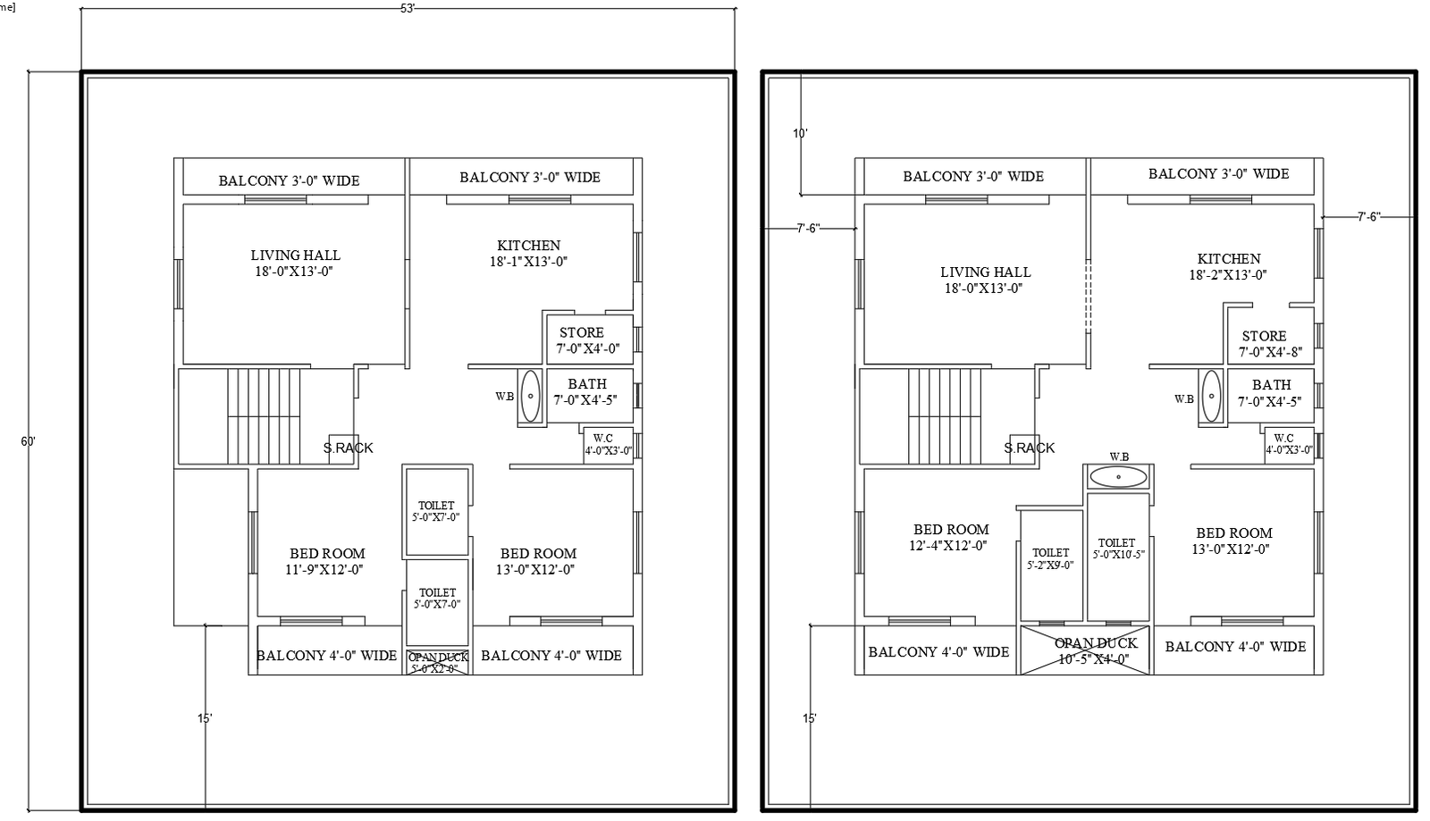
Download duplex house plan DWG file with 53x60 plot size including ground and first floor layouts with living hall, bedrooms, kitchen, store, bath, and balconies.

Uploaded by:
Umar
Mehmood

