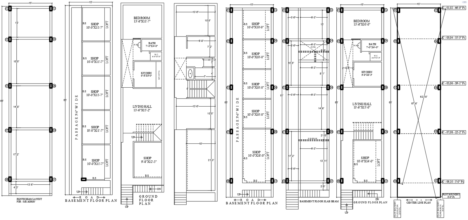
Mixed Use Building CAD Plan with Basement Shops and House Design
Description
Explore a mixed-use building CAD plan featuring basement and ground-floor shops with upper residential layout, including living hall, bedroom and kitchen.
Uploaded by:
Rashmi
Solanki

