Compact Residential Ground Floor Plan Drawing in AutoCAD Layout
Description
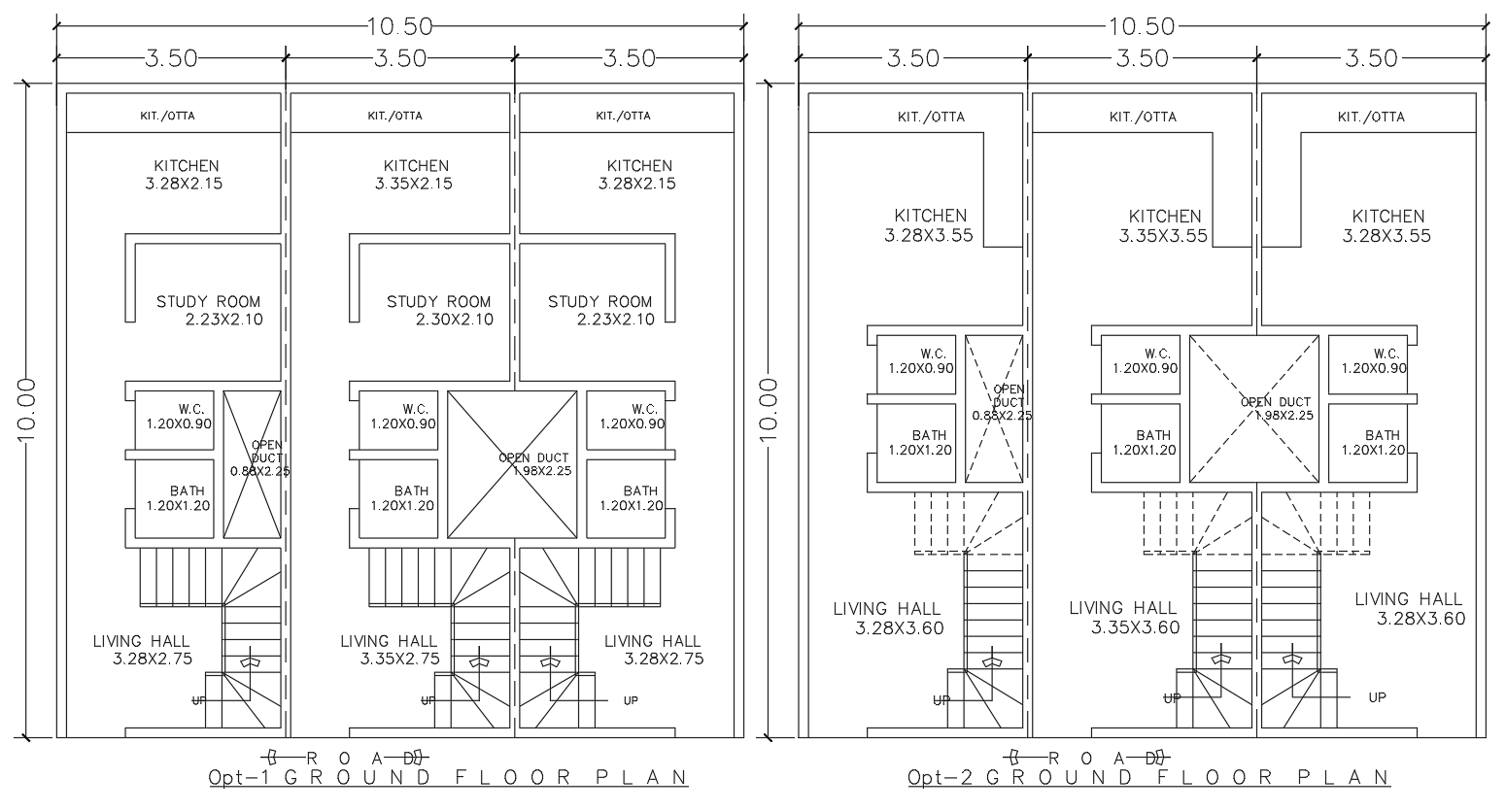
Download compact residential ground floor plan in AutoCAD with living hall kitchen study room and bath layout design options optimized for small house planning.

Uploaded by:
Umar
Mehmood

