Residential Building G Plus 3 Architectural AutoCAD DWG Plans
Description
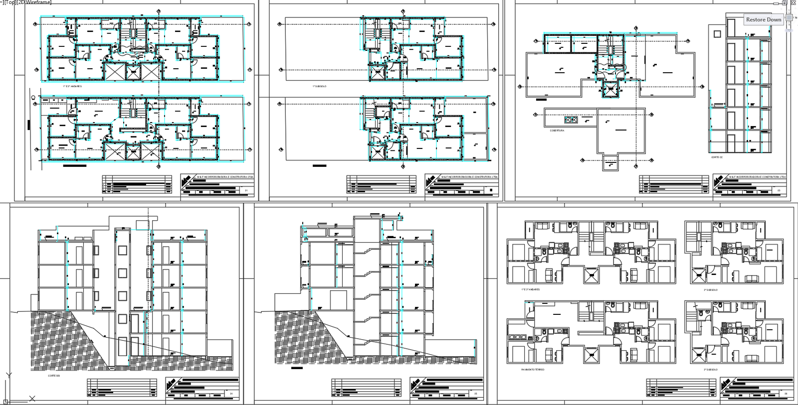
AutoCAD DWG showing full residential building design with basements, ground, and upper floors including plans, sections, furniture layouts, and terrace details.

Uploaded by:
Umar
Mehmood

