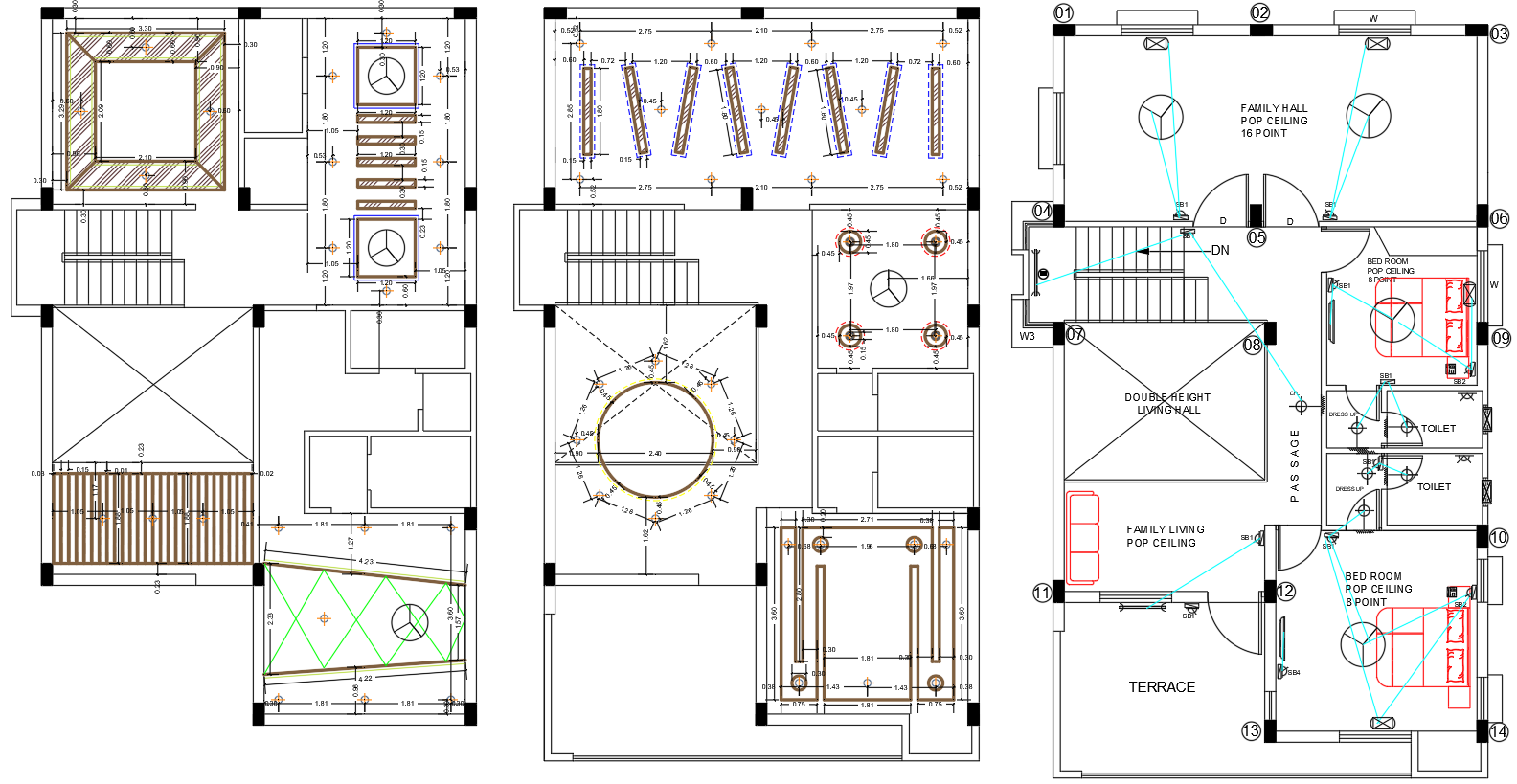
AutoCAD Residential POP Ceiling and Lighting Layout for First Floor
Description
AutoCAD layout of residential first floor showing POP ceiling, lighting design, terrace layout, and bedroom electrical points for modern house interior design.
Uploaded by:

