Residential House AutoCAD DWG Floor Plan with Area Dimensions
Description
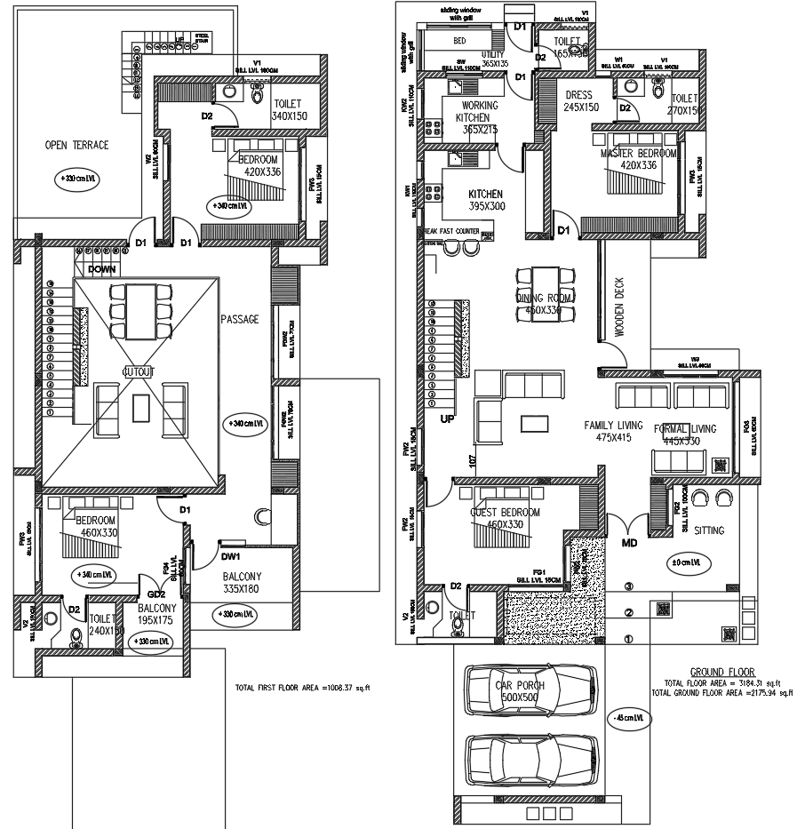
Download a residential house AutoCAD DWG file with complete floor plan, room layout, furniture detailing, and area dimensions — ideal for architects and designers.
Uploaded by:

