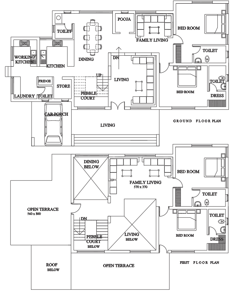
Modern Two Story House Plan DWG: Pooja, Kitchen-Open Terrace Layout
Description
Download the AutoCAD DWG file for this detailed ground and first-floor house plan. Features include Living, Dining, Pooja, Working Kitchen, and Open Terrace spaces. Essential for design professionals.
Uploaded by:

