Modern Single Storey House DWG Plan with Elevations and Sections
Description
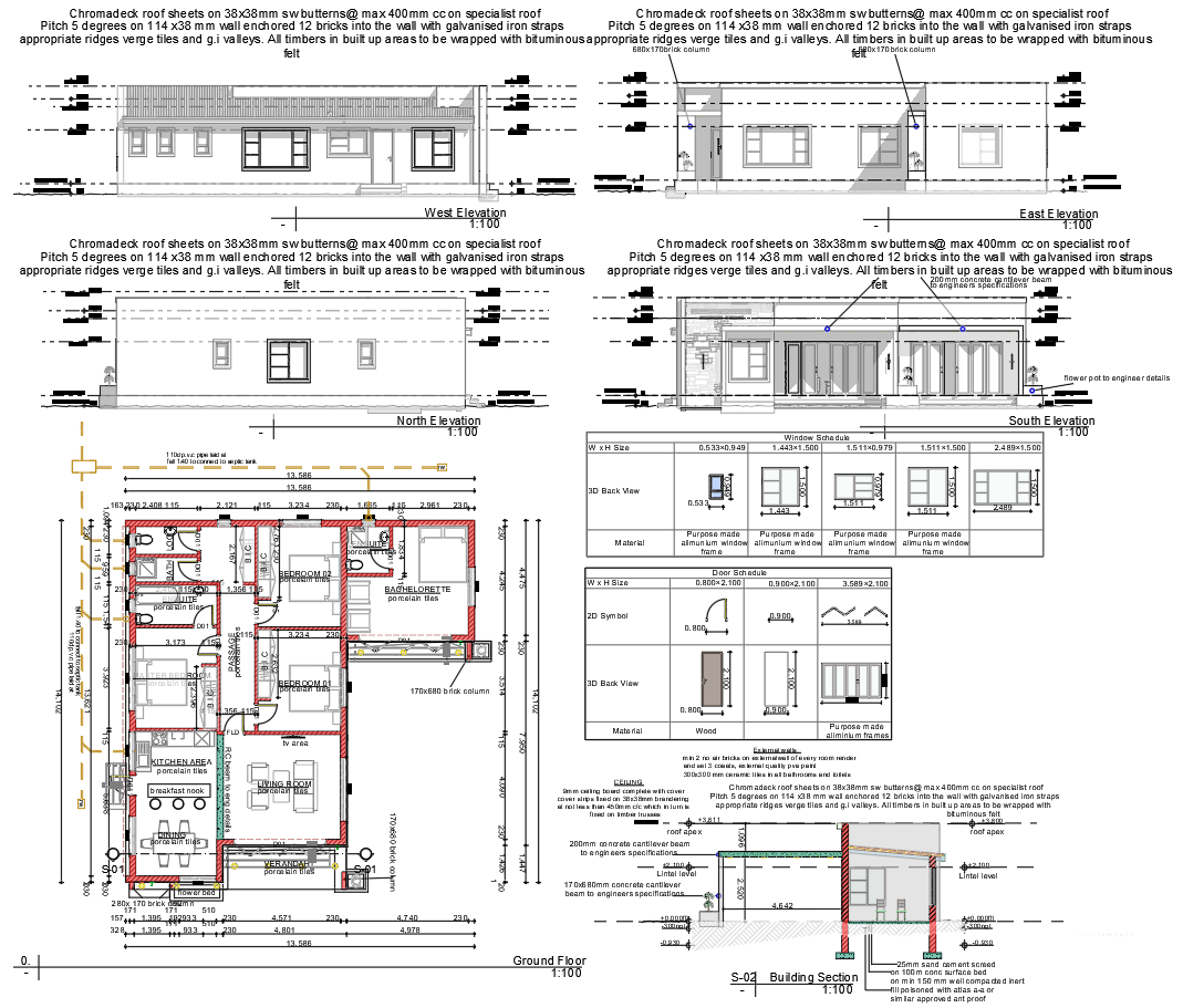
Download a modern single-storey house AutoCAD DWG plan with detailed elevations, sections, and layout. Subscribe to Cadbull for premium architectural CAD drawings.
Uploaded by:

