Projects
Ground Floor House Plan with Bedrooms Kitchen Store-Verandah Layout
MORE DETAILS
AutoCAD Modern House Plan with Courtyard Bedroom and Terrace
AutoCAD Modern Compact House Floor Plan with Lounge and Balcony
Traditional Two Storey House DWG Plan with Prayer Room and Terrace
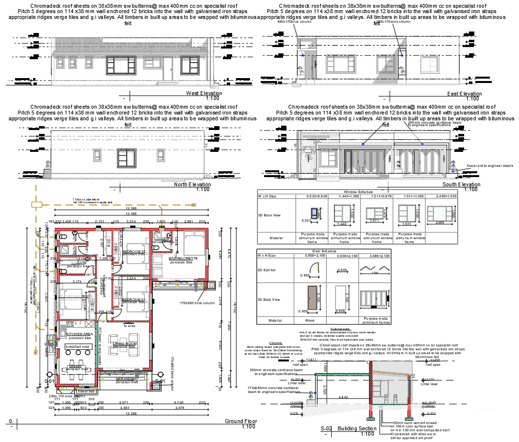
Modern Single Storey House DWG Plan with Elevations and Sections
Two Storey House AutoCAD DWG Plan with Living and Car Porch Layout
2417 Sq Ft Two Storey Architecture Residential House AutoCAD Layout
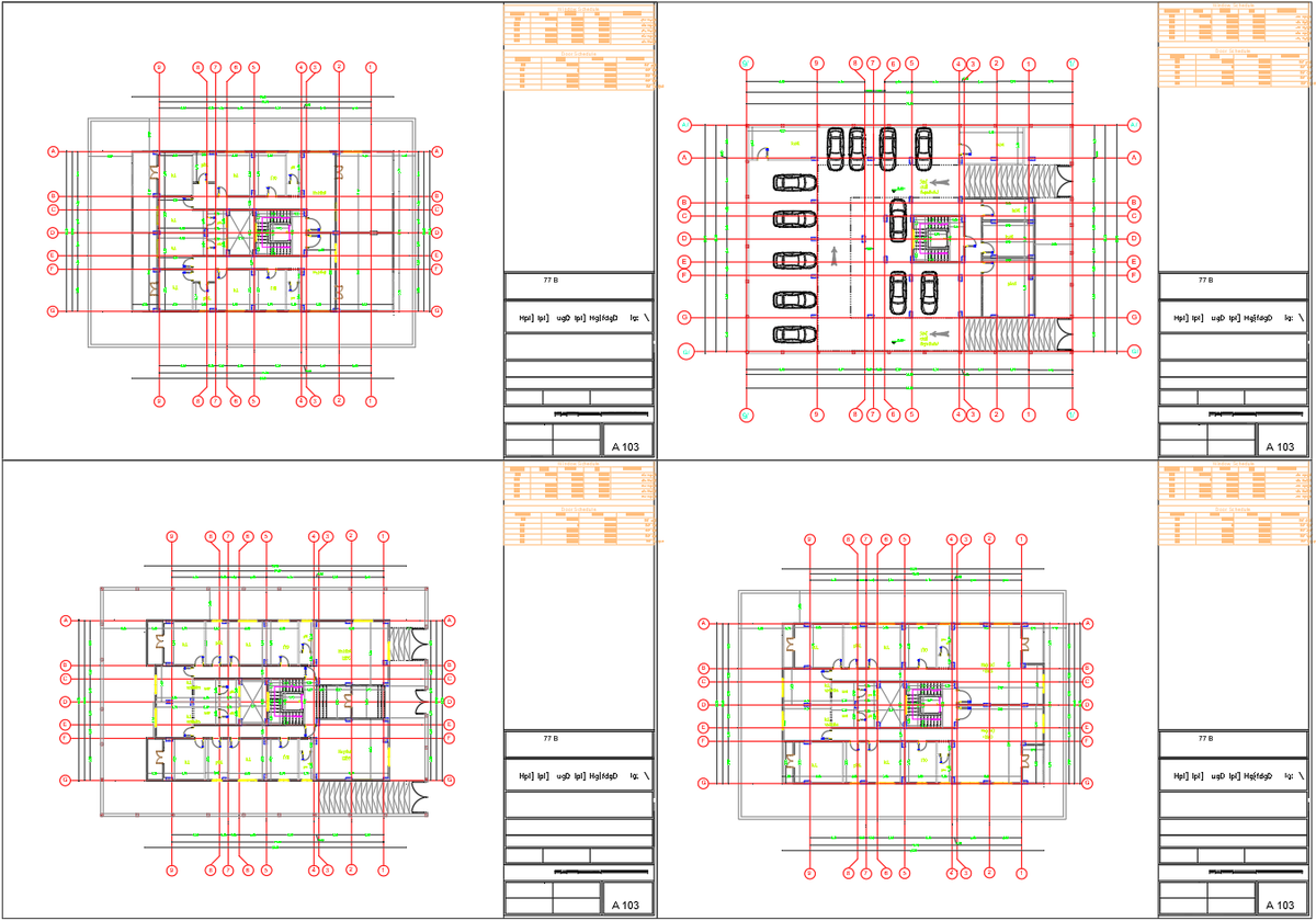
G Plus 2 Apartment Floor Plan Layout With Details AutoCAD DWG
Swimming Pool Plumbing Layout and SLD AutoCAD Drawing – MEP Plan
Apartment Architecture Working Plan Layout in AutoCAD Design
Proposed Auction Shade Plan with Steel Truss and Web Bridge Cabin
Lifting Station CAD File with Pumps Valve Pit and Pipe Sleeve Details