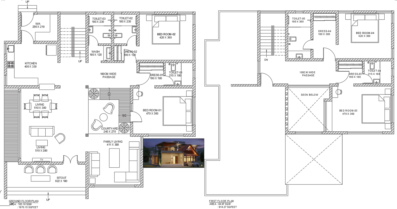
Contemporary Family House CAD Plan with Living and Courtyard Design
Description
Explore a contemporary family house CAD DWG plan with spacious living areas, courtyard, bedrooms, and toilets designed for architects & interior designers.

Uploaded by:
Neha
mishra

