60x46 Ground Floor House Plan with Joinery Details - AutoCAD DWG File
Description
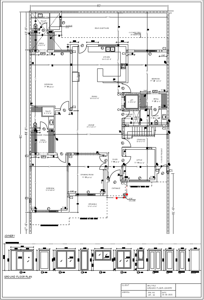
This AutoCAD 60’ x 46’ ground-floor house plan provides a complete architectural layout with accurate dimensions and joinery schedules for doors and windows. The plan includes a spacious 24’-3” x 15’-3” lounge, 18’-0” x 11’-0” dining area, 19’-6” x 12’-9” kitchen, multiple bedrooms, verandah spaces, office, foyer, and an internal 5’-6” x 5’-6” lift.
Toilets, dress areas, staircase (16’-0” x 7’-6”), and utility connections are clearly marked with centerline dimensions. A door and window joinery table with coded symbols is provided at the bottom for easy reference during construction.
This drawing is ideal for architects, civil engineers, and residential planning professionals looking for detailed execution-ready CAD data. All structural wall thicknesses, column locations, lintel projections, slab levels, and circulation widths are clearly indicated, ensuring highly accurate site-level implementation.

Uploaded by:
Liam
White

