200 Sqyds West Villa House Plan 1204 Sqft Floor Layout and Terrace
Description
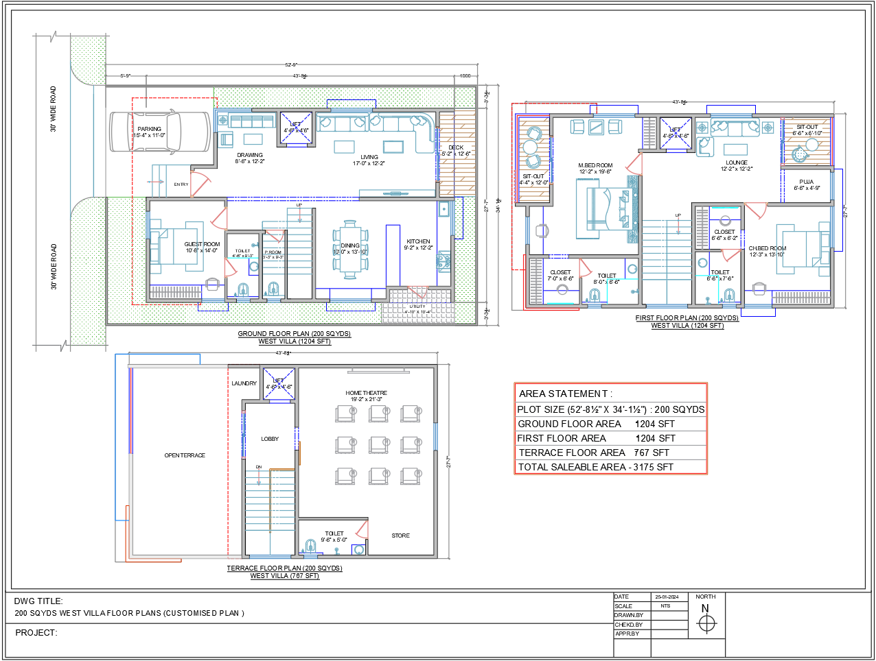
This AutoCAD DWG drawing provides a complete 200 sq. ft. West Facing Villa Plan featuring accurate ground floor, first floor, and terrace layouts. The plot size is 52'-8½" x 34'-1½", with 1204 Sqft Ground Floor Area, 1204 Sqft First Floor Area, and 767 Sqft Terrace Area, totalling 3175 Sqft saleable area. The ground floor includes parking (15'-4" x 11'-0"), drawing room (8'-6" x 12'-2"), living area (17'-0" x 12'-2"), kitchen (9'-2" x 12'-2"), dining area, guest bedroom (10'-8" x 14'-0"), and attached service spaces. The first floor consists of a master bedroom (12'-2" x 19'-6"), a children's bedroom (12'-3" x 13'-10"), a private lounge (12'-2" x 12'-2"), closets, sit-out balconies, and attached toilets. The terrace level includes a home theatre (19'-2" x 21'-3"), lobby, store, laundry, and open terrace for leisure use. This drawing is ideal for architects, civil engineers, builders, and interior designers looking to download and modify precise villa house plans for residential projects.

Uploaded by:
Neha
mishra

