School Building AutoCAD Plan with 48m2 Classrooms and Court Layout
Description
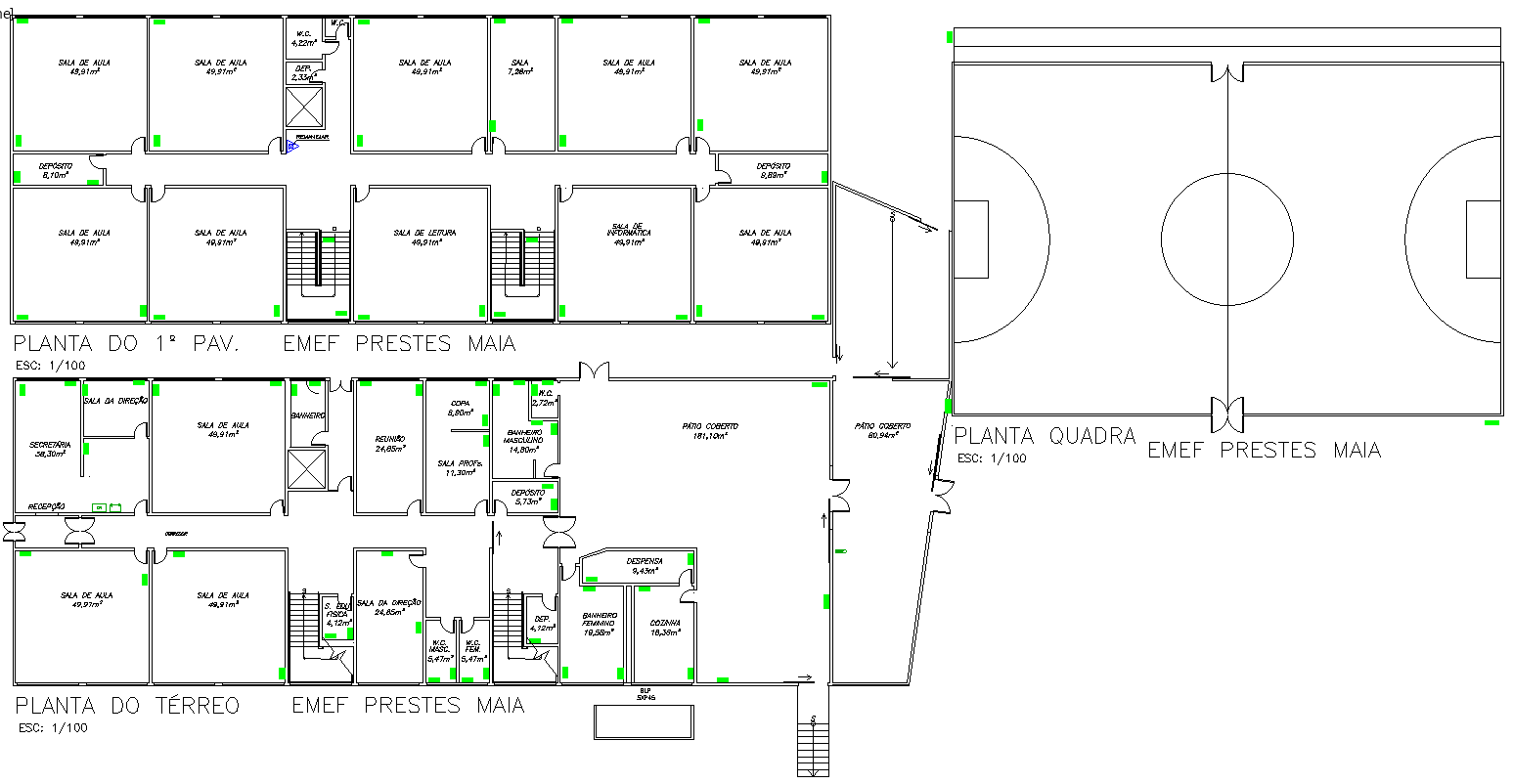
This AutoCAD DWG school building plan provides a complete architectural layout of both the ground floor and first floor, featuring accurately measured classrooms and essential service areas for professional planning. The ground floor includes multiple 48.91 m² classrooms, a 30.28 m² director's office, a secretary's room, a reception area, a reading room, boys' and girls' WC units, storage spaces ranging from 8.49 m² to 9.28 m², a 20.54 m² meeting room, and a 61.84 m² covered patio that enhances student circulation and open activity zones. The detailed corridor alignment, twin staircases, and well-defined access points help architects and engineers analyse movement, safety, and usability with precision.
The first floor continues with a structured arrangement of 48.91 m² classrooms, an 8.24 m² amphitheatre room, a 7.87 m² reading space, and multiple strategically placed storage rooms for efficient learning-space management. The plan also includes a full sports court layout with accurate boundary markings and proportional field measurements, making this DWG suitable for educational campus development. This drawing helps architects, civil engineers, interior designers, and builders who subscribe to Cadbull access ready-to-use, high-quality school architectural plans that support approval drawings, design development, and 3D modelling workflows.
Uploaded by:

