AutoCAD Residential Plan with Accurate Room, Kitchen, and Bath Sizes
Description
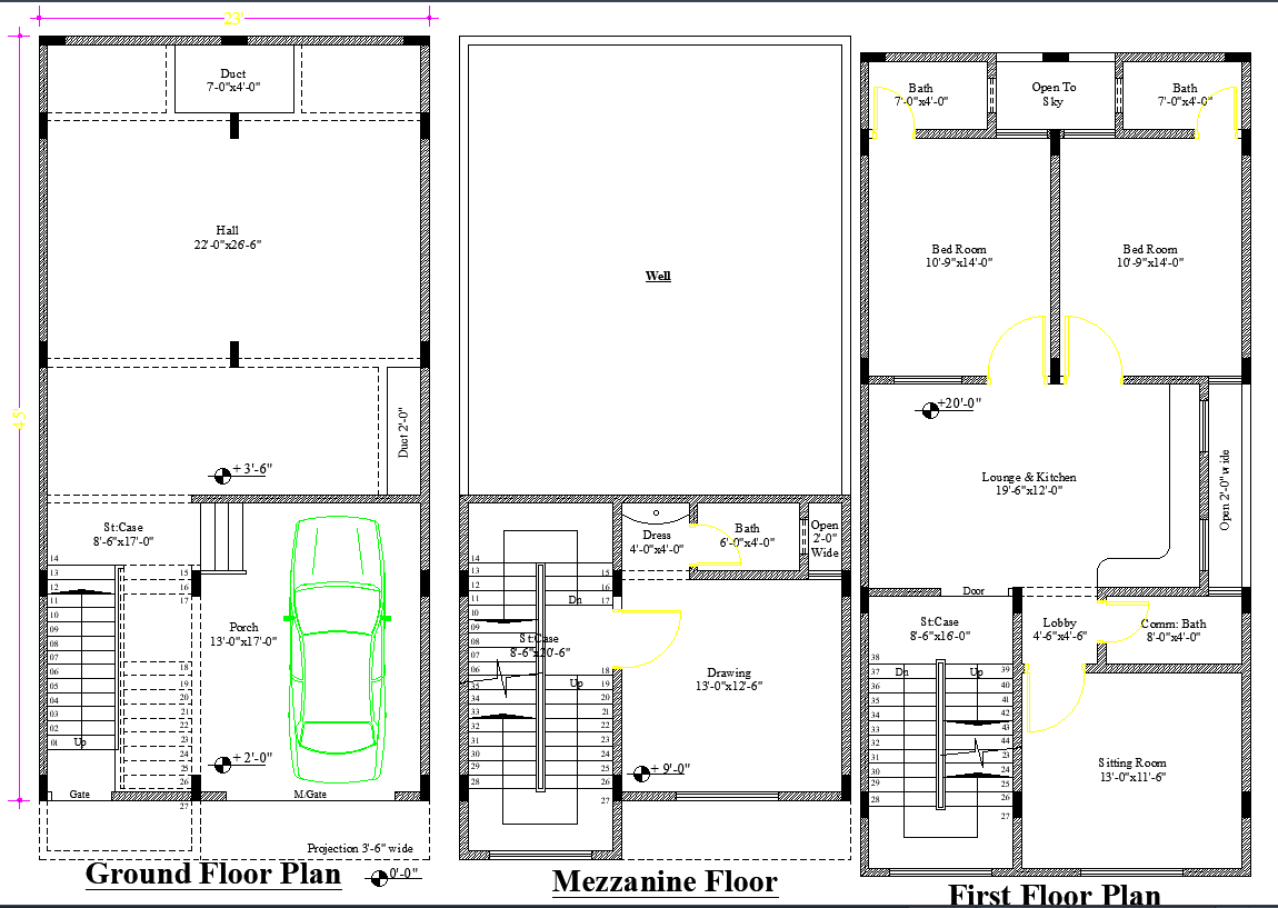
This AutoCAD house plan layout includes multiple residential design proposals, each showing clear room zoning, dimensioning, and circulation paths ideal for architects, civil engineers, and interior designers. The ground floor layouts in the drawing display bedrooms sized 12 ft by 14 ft, 12 ft 6 in by 17 ft 6 in, 13 ft by 17 ft 3 in, and master bedrooms measuring 19 ft by 16 ft 6 in, giving accurate references for spatial planning. Kitchens are shown with dimensions such as 7 ft 6 in by 10 ft, 5 ft 6 in by 8 ft, and 10 ft by 7 ft, while lounges range from 12 ft by 12 ft to 17 ft by 12 ft, offering detailed insights into family living areas. Bath measurements include 7 ft 6 in by 6 ft, 4 ft by 8 ft, 8 ft 6 in by 4 ft, and 6 ft 6 in by 4 ft 6 in, along with open-to-sky ventilation spaces and washing areas such as 4 ft by 5 ft 6 in.
The plans also show car porches sized 10 ft 6 in by 17 ft and 9 ft 6 in by 17 ft, along with passages measuring 4 ft 6 in wide for smooth circulation. Staircase blocks range from 7 ft by 17 ft to 8 ft 6 in by 20 ft 6 in, ensuring proper vertical movement between floors. The mezzanine and first floor layouts include rooms of 10 ft by 16 ft, 9 ft 6 in by 12 ft, and lounges measuring 13 ft 6 in by 15 ft, providing flexibility for multi-level residential design. With clear openings, projections of 3 ft 6 in width, and duct spaces measuring 7 ft by 4 ft, this AutoCAD house plan layout delivers precise and practical design data needed for efficient residential construction planning.
Uploaded by:

