Spacious House CAD DWG Plan with Bedrooms, Lounge Kitchen Lawn
Description
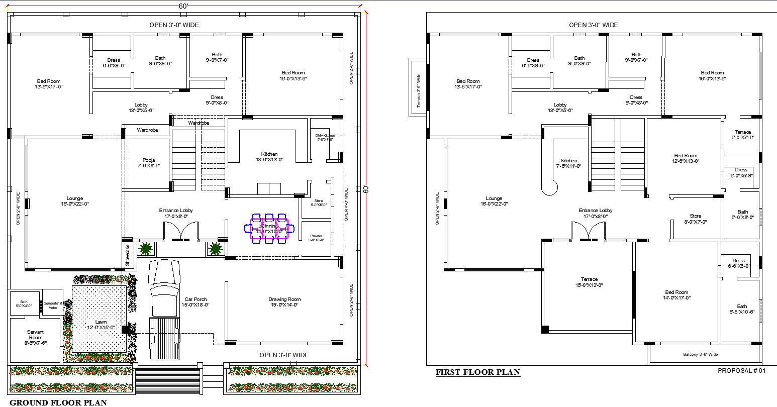
This CAD DWG house design presents a fully detailed two-floor residential layout with accurately marked dimensions and functional room planning. The ground floor includes a 16 ft x 13 ft 6 in bedroom, a second bedroom sized 13 ft 6 in x 17 ft, dressing rooms ranging 6 ft 6 in x 9 ft and 9 ft x 8 ft, and bathrooms measuring 9 ft x 7 ft and 9 ft x 9 ft. The central lounge spans 16 ft x 22 ft, connecting directly to a 13 ft 6 in x 13 ft kitchen, a 12 ft x 10 ft dining area, and a 19 ft x 14 ft drawing room. Additional spaces include a 7 ft 6 in x 8 ft 6 in pooja room, 5 ft x 7 ft dirty kitchen, 5 ft x 6 ft powder room, 5 ft x 6 ft store, a wide 17 ft x 8 ft entrance lobby, and a 15 ft x 18 ft car porch. A landscaped lawn measuring 12 ft 6 in x 15 ft 6 in and a servant room of 8 ft 6 in x 7 ft 6 in complete the ground floor.
The first floor plan includes bedrooms sized 13 ft 6 in x 17 ft, 16 ft x 13 ft 6 in, and 14 ft x 17 ft, each with attached baths measuring 6 ft 6 in x 10 ft 6 in and 6 ft x 8 ft, along with dress rooms between 6 ft x 5 ft 9 in and 6 ft 6 in x 6 ft. A spacious 16 ft x 22 ft lounge, 7 ft 6 in x 11 ft kitchen, and a 17 ft x 8 ft 6 in entrance lobby highlight the upper level. Multiple terrace areas sized 15 ft x 13 ft and 6 ft x 7 ft 6 in provide open-air extensions, while balcony access of 3 ft 6 in width enhances ventilation and circulation. This complete DWG layout is ideal for architects, civil engineers, interior designers, builders, and CAD professionals seeking a fully detailed, dimension-rich residential design for planning and execution.
Uploaded by:

