Commercial Residential Cad Drawing with Floors Parking and Rooms
Description
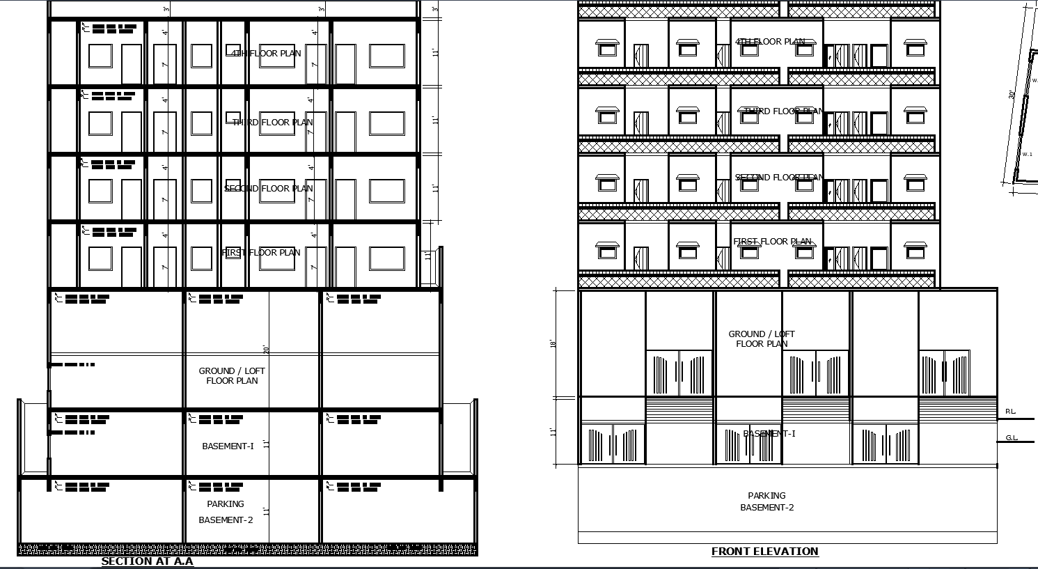
This detailed AutoCAD building plan presents a complete multi-storey project containing basement parking, ground floor showrooms, and four levels of residential units. Basement-II offers a 77 ft 6 in x 66 ft 6 in parking hall, while Basement-I includes 75 ft 6 in x 20 ft 6 in parking with lift access. The ground floor features three showrooms sized 22 ft 6 in x 50 ft, 22 ft 9 in x 50 ft, and 20 ft x 50 ft, along with open-to-sky shafts measuring 4 ft 7 in, 6 ft 3 in, and 9 ft 9 in.
Typical floors include rooms sized 12 ft x 11 ft 3 in, 15 ft x 11 ft 3 in, 10 ft x 11 ft 3 in, 14 ft 6 in x 11 ft, kitchens measuring 5 ft 6 in x 10 ft 9 in, 6 ft x 10 ft 9 in, and lounges of 33 ft 3 in x 10 ft and 28 ft x 10 ft 9 in. Bathrooms appear as 7 ft x 5 ft 6 in, 4 ft 3 in x 5 ft 3 in, and 4 ft x 6 ft. Balconies range from 3 ft to 11 ft 6 in x 6 ft, with passages of 5 ft and 7 ft wide for circulation. The elevation shows RCC beams of 9 in x 24 in, 6-inch slabs, and a plot size of 59 ft 9 in x 50 ft, as noted on the site plan.
Uploaded by:
apurva
munet

