Residential Cad Drawing Plan with Floors Rooms Kitchen and Baths
Description
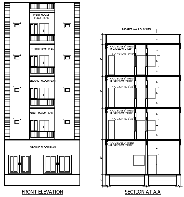
This residential AutoCAD layout provides complete plans for the ground floor, first floor, second floor, third floor, and the paint house level. The ground floor includes a 15 ft 6 in x 8 ft staircase block, a 10 ft x 13 ft 9 in room, a 14 ft x 10 ft room, a 10 ft x 13 ft 9 in wash-up room, and a 15 ft 6 in x 24 ft 3 in parking area. Bathrooms are clearly dimensioned at 8 ft x 4 ft 6 in, 5 ft 6 in x 5 ft 3 in, and 8 ft x 3 ft 6 in, placed beside balconies of 4 ft and 5 ft depth.
Upper floors contain bedrooms sized 11 ft 6 in x 10 ft, 10 ft x 10 ft, and 15 ft 6 in x 13 ft, along with 9 ft x 9 ft 6 in lounges and 6 ft x 9 ft 6 in kitchens. Each level includes 3 ft 6 in passages, 2 ft–5 ft projections, and balconies measuring 4–5 ft. The paint house shows a 15 ft 6 in x 8 ft overhead tank, a 10 ft x 13 ft 9 in room, and an open terrace of 27 ft x 24 ft 6 in. Section A-A displays RCC slabs of 6 inches, beams 6 in x 18 in, and lintels 6 in x 9 in, while the 27 ft x 50 ft site plan defines the plot and surrounding roads of 20 ft and 40 ft width.

Uploaded by:
Liam
White

