Building AutoCAD File with Shops Halls Rooms Kitchen and Balcony
Description
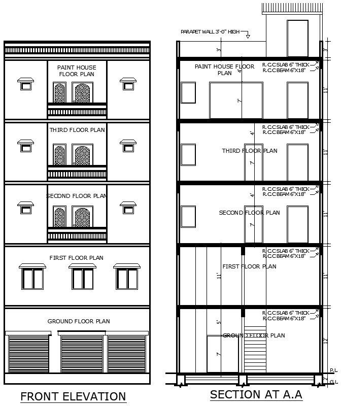
This detailed AutoCAD layout includes complete plans for the ground, first, second, third, and paint house floors, showing clear room and hall measurements across each level. The ground floor features Shop No 1 (8 ft 3 in x 21 ft) and Shop No 2 (8 ft 6 in x 21 ft), along with halls sized 8 ft 3 in x 25 ft and 8 ft 6 in x 25 ft, with staircases measuring 9 ft 6 in x 17 ft. Upper floors provide rooms sized 11 ft 6 in x 13 ft, 11 ft 6 in x 15 ft 6 in, and 10 ft 6 in x 15 ft 6 in, supported by 4 ft-wide passages and bathrooms of 4 ft x 7 ft and 7 ft x 5 ft.
Balconies are shown at 11 ft x 5 ft 6 in and 4 ft wide, with open courts measuring 16 ft 6 in x 18 ft 6 in. The paint house level includes an O.H.W. tank (9 ft 6 in x 17 ft). Section A-A displays an RCC slab 6 inches thick, beams 6 in x 18 in, and plinth beams 9 in x 24 in, while the site plan marks a 27 ft x 50 ft plot bordering the main road. This DWG provides a complete reference for architects, civil engineers, and interior designers.
Uploaded by:
Rashmi
Solanki

