Ground and First Floor AutoCAD Plan with Shops and Room Layout
Description
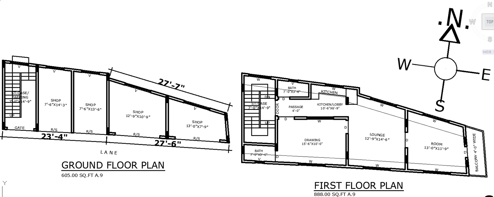
This detailed AutoCAD DWG layout presents the complete ground and first floor plans of a mixed commercial and residential building, making it highly useful for architects, civil engineers, interior designers, and builders. The ground floor includes four shops sized 7 ft 6 in by 14 ft 3 in, 7 ft 6 in by 13 ft 6 in, 12 ft 9 in by 10 ft 9 in, and 13 ft by 7 ft 9 in, arranged along the lane-facing frontage. A staircase and parking zone measuring 7 ft by 14 ft 9 in supports smooth vertical access from the entrance gate. The plan also displays clear wall markings, R S notations, and room transitions that help professionals understand space division, circulation, and structural zoning for practical site execution.
The first floor plan expands the functional arrangement with a 12 ft 9 in by 14 ft 6 in lounge, a 13 ft by 11 ft 9 in room, and a 15 ft 6 in by 10 ft drawing room. The kitchen lobby is sized 10 ft 6 in by 6 ft 9 in, while two bathrooms measure 7 ft by 3 ft 6 in each. A 4 ft wide balcony and a 4 ft passage support ventilation and movement. The accompanying site plan outlines boundary lengths of 23 ft 4 in, 27 ft 6 in, 50 ft 6 in, and 42 ft 3 in, with lane widths of 21 ft and 22 ft, providing complete clarity for drafting, modelling, and project planning. This DWG file offers precise, ready-to-use details that help professionals save time and enhance design accuracy

Uploaded by:
Umar
Mehmood

