Residential Landscape Layout AutoCAD Plan with Pool and Cabana
Description
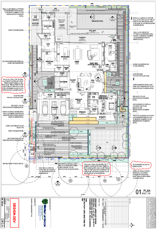
This Residential Landscape General Arrangement Plan AutoCAD drawing provides a detailed outdoor layout created for a high-quality residential property. The plan includes accurate measurements for major elements such as a 357 square feet pool deck, a 290 square feet cabana, a 525 square feet verandah, and a 322 square feet entrance zone. The drawing also highlights RC slab areas in sand wash finish, structured tile surfaces, LED strip lighting positions, planting kerbs, drainage points, tall hedge placements, and shrub groupings arranged as shown in the layout. Side gates with aluminium trellis panels, a cantilevered RC step, and feature wall details are clearly marked to support accurate landscape planning.
This AutoCAD DWG file also displays the connection of landscape spaces with indoor areas, including the dry kitchen, wet kitchen, dining room, hallway, and garage. All exterior finishes, planting beds, paved zones, and structural landscape components are shown with precise annotations. This drawing is ideal for architects, civil engineers, interior designers, landscape designers, and builders who require a well-measured residential landscape layout for design development, visualization, and construction coordination.

Uploaded by:
Liam
White

