Basement Floor Perforated Drain Pipe Layout with Detailed Tank Plan
Description
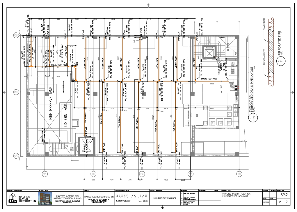
This detailed basement floor perforated drain pipe layout provides a complete overview of the underground drainage system, highlighting the exact pipe routes, perforation lines, and flow directions required for efficient water management. The drawing includes precise dimensions for the cistern tank, fire reserve water tank, and connecting pipelines, ensuring accurate placement during construction. All measurements, levels, and structural references are clearly marked to support proper alignment and reduce installation errors on-site.
In addition, the plan illustrates essential basement features such as tank depth, inlet and outlet positions, and drainage collection pathways designed to prevent waterlogging and structural damage. This AutoCAD layout is ideal for architects, civil engineers, and builders who need a reliable and technically accurate reference for designing and executing basement drainage systems. It supports professional workflow, improves design clarity, and ensures long-term functionality in residential and commercial projects.
File Type:
DWG
File Size:
482 KB
Category::
Dwg Cad Blocks
Sub Category::
Autocad Plumbing Fixture Blocks
type:
Gold

Uploaded by:
Liam
White

