Single Storey Bungalow DWG with Floor Plan Section and Elevation
Description
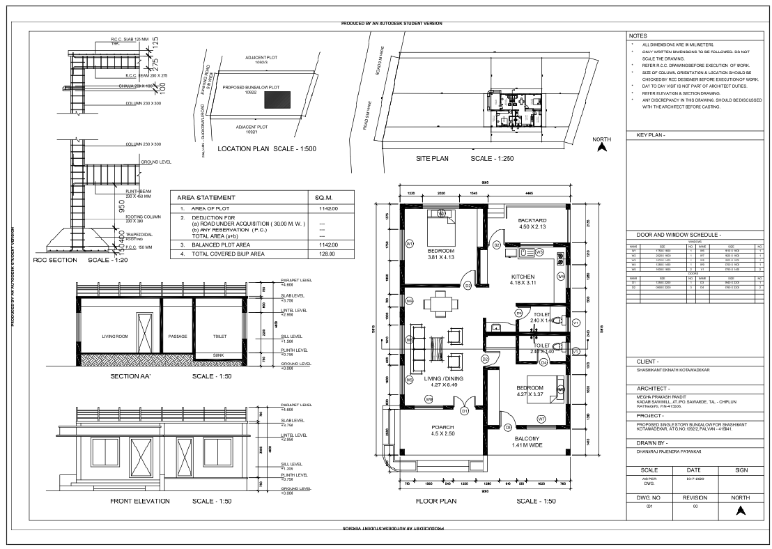
This AutoCAD DWG file provides a complete single-storey bungalow layout, including floor plan, section, elevation, RCC structural details, and door–window schedule as shown in the uploaded drawing. The floor plan details room dimensions such as Living/Dining 4.27 × 6.49 m, Bedroom 4.27 × 3.37 m, Bedroom 3.81 × 4.13 m, Kitchen 4.18 × 3.11 m, Backyard 4.50 × 2.13 m, Porch 4.5 × 2.50 m, Balcony 1.41 m, and Toilets 2.40 × 1.40 m. Levels are clearly marked, including Ground Level +0.000, Plinth +0.750, Sill +1.350/1.500, Lintel +2.950, Slab +3.750, and Parapet +4.600. Window sizes range from W1 1750 × 1600 mm to W9 700 × 1600 mm, while door sizes include D1 1250 × 2200 mm, D2 900 × 2200 mm, D3 940 × 2200 mm, and D4 760 × 2200 mm.
The RCC section includes 230 × 300 mm columns, 150 mm P.C.C., 230 × 450 mm plinth beam, 230 × 275 mm RCC beam, and 125 mm slab thickness, providing a construction-ready structural reference. The sheet also includes a site plan, location plan, north direction, area statement (plot area 1142 sq m, built-up 128 sq m), and essential construction notes. This DWG is ideal for architects, civil engineers, and builders requiring accurate bungalow design drawings.

Uploaded by:
Neha
mishra

