Residential Fire Safety Layouts DWG for 5,313.27 m² Building
Description
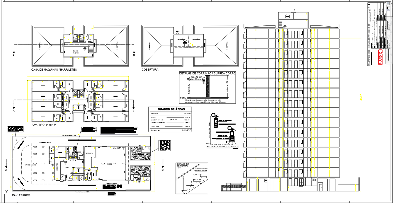
This AutoCAD DWG file presents a comprehensive fire safety and architectural layout for a residential building with a total built-up area of 5,313.27 m² and a ground floor area of 640.00 m². The drawing includes clearly defined floor plans from the ground level to typical floors up to the 15th storey, along with roof and machine room layouts. Key elements such as parking access, vehicle maneuvering areas, permeable zones, staircases, elevators, halls, residential units, balconies, and service spaces are accurately dimensioned. Detailed area schedules show floor-wise calculations, including typical floor areas of 4,818.15 m², terrace and machine room areas, and water tank provisions, supporting precise project planning and coordination.
In addition, the DWG file integrates essential fire safety details such as escape staircases, handrail and guardrail dimensions, extinguisher installation heights up to 1.60 m, water tank capacities of 5.00 m³, and safety clearances in compliance with standard regulations. Section views, stair details, and roof layouts improve understanding of vertical circulation and safety planning. Accurate room sizes, ventilation shafts, kitchens, living areas, and sanitary spaces are clearly marked throughout the plans. This drawing is ideal for architects, civil engineers, interior designers, builders, and CAD professionals who require reliable residential building and fire safety documentation with clear measurements for design development and execution.
File Type:
DWG
File Size:
629 KB
Category::
Construction
Sub Category::
Construction Detail Drawings
type:
Gold

Uploaded by:
Umar
Mehmood

