Type Stair Ground And First Floor Staircase Section Drawings
Description
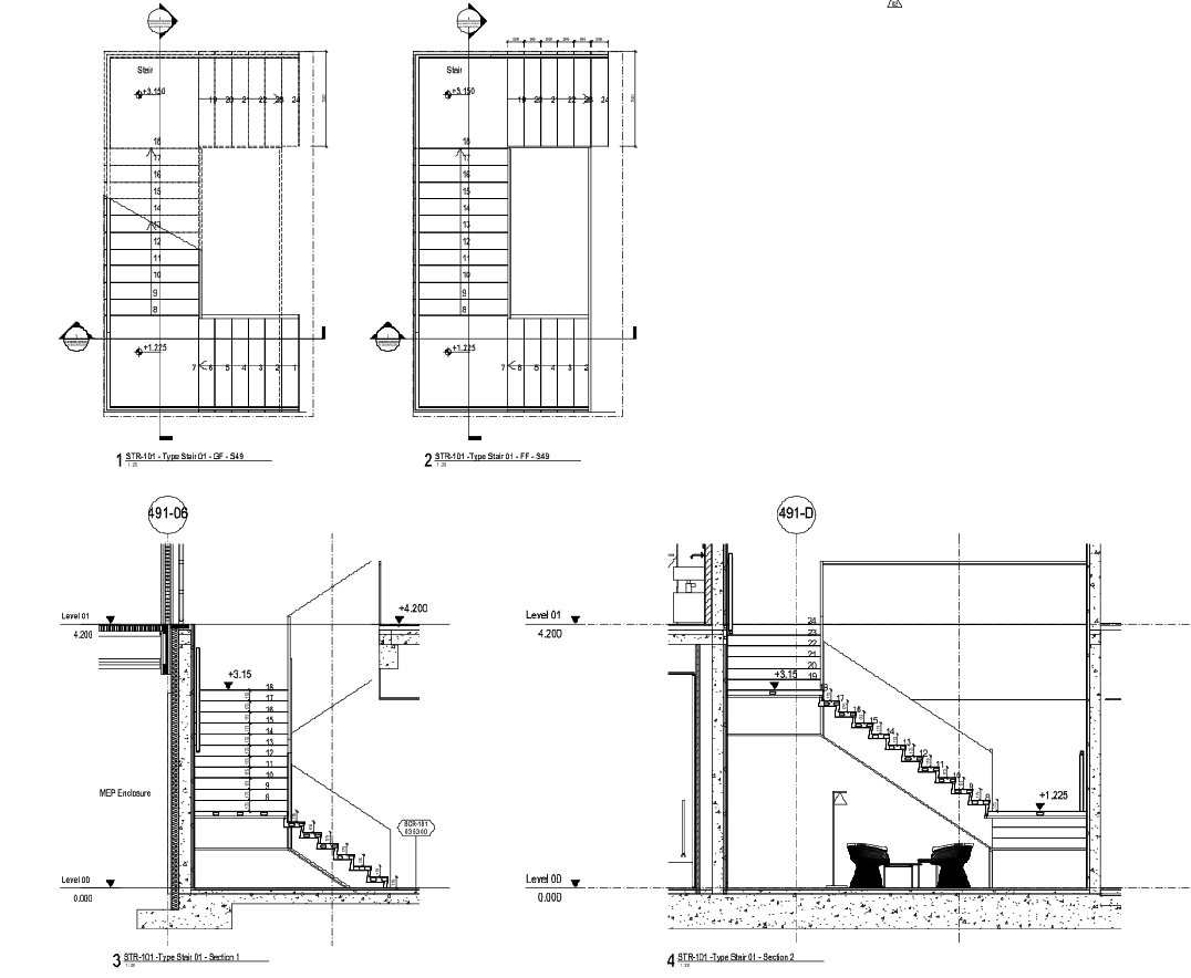
This AutoCAD drawing file provides detailed staircase section and layout drawings prepared for construction planning and execution. The drawings include ground floor and first floor staircase plans with clearly marked tread numbers, riser heights, stair widths, landing dimensions, and level markers such as +1.225, +3.150, and +4.200. Direction indicators and reference tags support accurate orientation and placement within building layouts. These drawings are commonly prepared under Staircase Sections work, where vertical movement between floors must be clearly defined for construction accuracy.
The file also contains sectional views illustrating stair profile, slab connection, landing structure, and integration with surrounding walls. Riser and tread build-up, floor level transitions, and clearance conditions are shown with precise dimensions to support site execution. Such drawings are typically coordinated with Staircase Details during construction documentation and further supported through Construction Detail Drawings for execution clarity. The staircase information also aligns with Structure Drawing requirements, ensuring proper coordination with slabs and structural elements. The AutoCAD format allows easy modification while maintaining dimensional consistency across all staircase drawings.

Uploaded by:
Liam
White

