Friction Slab With Crash Barrier Reinforcement Detail Drawing
Description
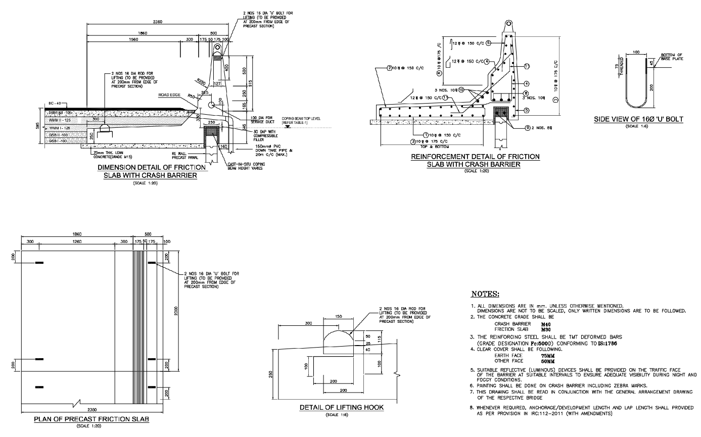
This AutoCAD drawing presents a detailed friction slab with a crash barrier layout used in bridge and roadway infrastructure projects. The file includes a clear plan of the precast friction slab along with precise dimensional data, showing slab width, thickness, edge offsets, and connection zones. Structural coordination is explained through sectional views that illustrate slab placement over lean concrete, coping beam alignment, and interface with the road edge. This drawing is especially useful for professionals working on Construction projects where accuracy in slab positioning and barrier integration is critical for long-term performance and safety.
The drawing further provides complete reinforcement detailing for the friction slab and crash barrier system, including bar spacing, diameter specifications, U-bolt fixing, and lifting hook details for precast handling. Notes clarify material grades, concrete strength, clear cover, and reflective paint requirements on the traffic face. Sectional reinforcement views help engineers understand load transfer and anchorage behavior in accordance with standard practices followed in Road Construction works. The detailing style supports execution, inspection, and approval stages, making it suitable for use in Structure coordination and Concrete Details documentation for highways, bridges, and transport infrastructure developments.
File Type:
DWG
File Size:
866 KB
Category::
Construction
Sub Category::
Reinforced Cement Concrete Details
type:
Gold

Uploaded by:
Liam
White

