Commercial Truck Basement Parking Layout With Ramp Section Plan
Description
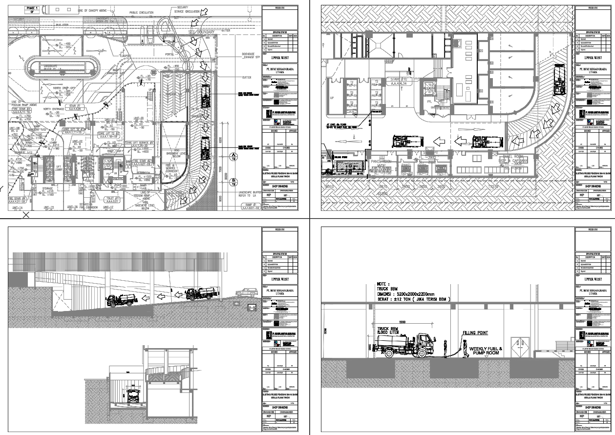
This AutoCAD DWG file provides a professionally developed truck basement parking layout suitable for large-scale architectural and commercial projects. The drawing includes a detailed basement floor plan showing truck entry and exit circulation, internal driveway alignment, turning radius control, and parking bay arrangement. Clear dimensional annotations define driveway widths, vehicle movement paths, and structural column coordination, ensuring smooth and safe truck navigation within the limited basement space. This drawing is handy for projects related to Commercial Buildings, Industrial Plants, and Malls and Shopping Centers, where organized basement parking for heavy vehicles is required.
The file also includes detailed ramp sections and elevation drawings, illustrating slope gradients, level transitions, and vertical clearance required for truck movement. Standard truck dimensions are shown to verify ramp usability, headroom safety, and maneuvering efficiency. Structural elements such as retaining walls, floor levels, and boundary conditions are clearly indicated to support construction coordination. This AutoCAD DWG file is ideal for architectural planning projects related to architecture, Roads and Bridges, and construction details. The editable CAD format allows easy modification and seamless integration into larger design and execution drawings.

Uploaded by:
Liam
White

