Retail And Cafe Signage Elevation Section Drawing For Interiors

Retail And Cafe Signage Elevation Section Drawing For Interiors
Profile

Uploaded by:

Liam

White

Description

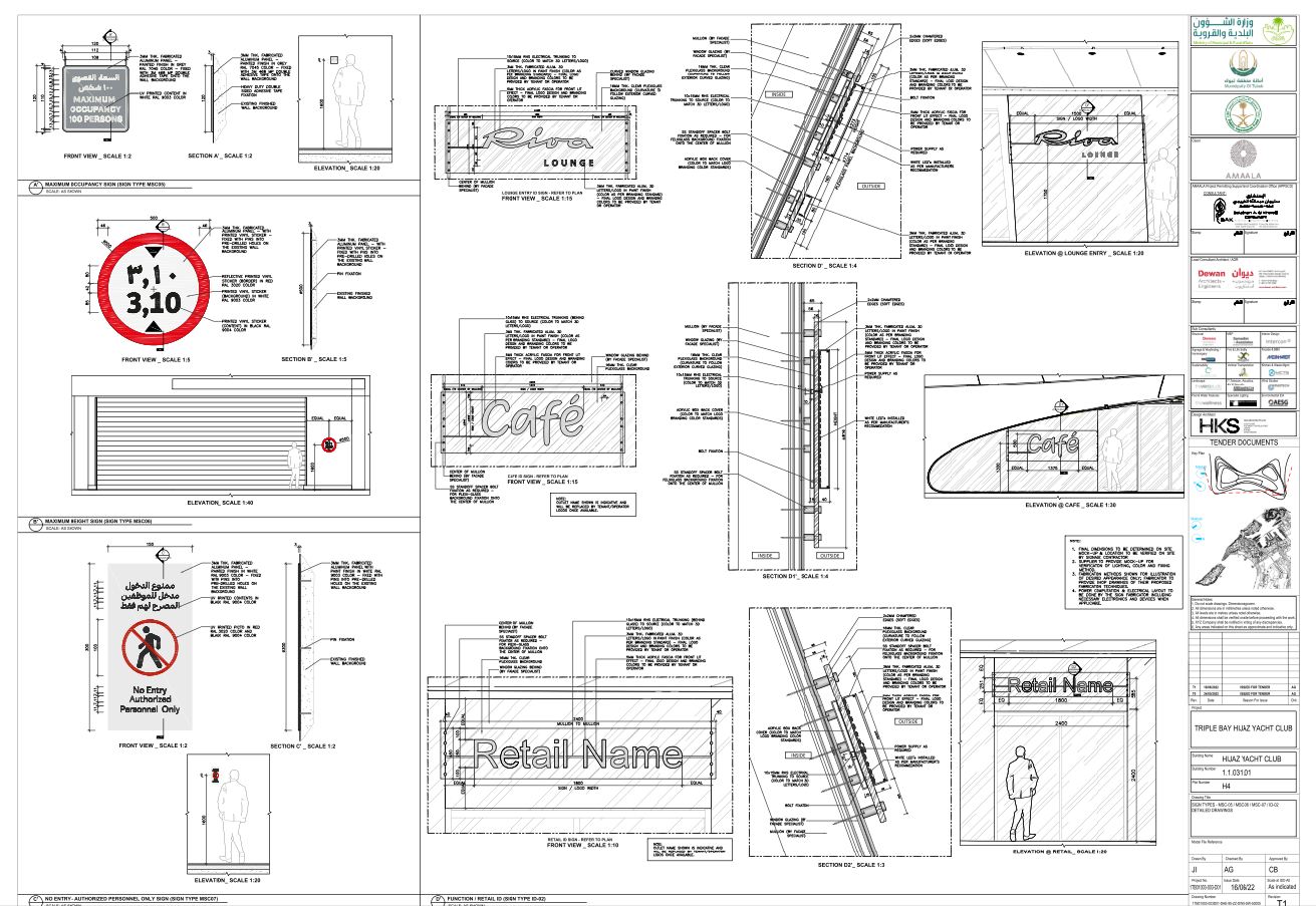
This drawing presents a detailed signage and elevation layout prepared for retail and cafe interior environments. The sheet explains front views, sectional views, and elevation proportions used for signage placement and visibility control. Dimensions, mounting positions, and height references are clearly indicated to support fabrication and on-site installation. The drawing helps professionals understand how signage elements align with wall surfaces, openings, and circulation zones within commercial interiors. Planning clarity and visual coordination are supported for projects that require consistent signage standards and execution accuracy. Design coordination is supported within the scope of Interior Design, allowing visual alignment with finishes and spatial intent. The drawing also assists in approval coordination within larger Projects, where signage placement must align with architectural and operational guidelines.

The drawing set further includes detailed sections showing fixing methods, material thickness, and mounting offsets required for signage execution. These sectional views support installation clarity and coordination with wall assemblies. Fabrication understanding is enhanced using Architectural Detail Drawings, which explain construction junctions and fixing references. Additional layout understanding is supported through Furniture coordination, ensuring signage elements align with counters, retail fronts, and user movement areas. The overall documentation assists architects, interior designers, and contractors in executing signage layouts accurately while maintaining consistency across retail and cafe interior spaces.

Profile

Uploaded by:

Liam

White

find Latest

Related Files

WhatsApp Chat