Residential Tile Layout Drawing With Ground First Terrace Floor Plans
Description
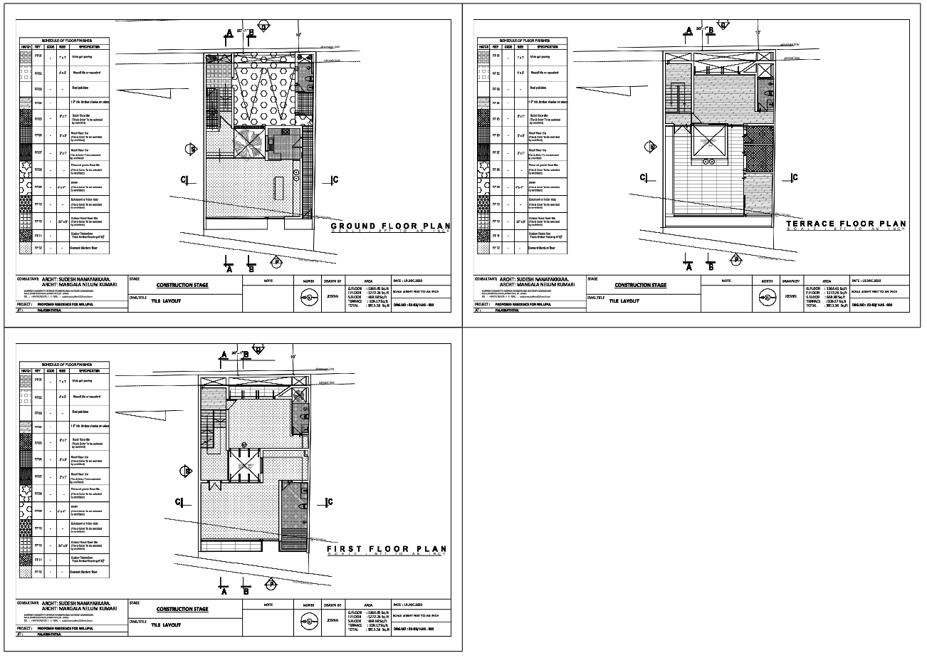
This AutoCAD DWG drawing presents a detailed residential tile layout design covering the ground floor, first floor, and terrace floor plans at the construction stage. The drawing includes a complete schedule of floor finishes with hatch keys, tile sizes such as 1x1, 2x1, 2x2, 4x2, and 4x4, and material specifications like miris gal paving, red pebbles, rocell floor tiles, timber planks, outdoor rocell tiles, and cement titanium flooring.
The plans show internal circulation, courtyard openings, staircases, wet areas, terraces, and outdoor zones with clear section markers A, B, and C. Area calculations are clearly defined with a ground floor area of 1364.45 square feet, first floor area of 1272.26 square feet, a terrace area of 509.17 square feet, and a total built-up area of 3815.56 square feet. All layouts are drawn to a scale of eight feet to an inch, include north direction, drainage, and street line references, and are suitable for execution and site coordination using AutoCAD DWG format.

Uploaded by:
Neha
mishra

