AutoCAD Bedroom Interior Elevation Drawing With Dimensions DWG
Description
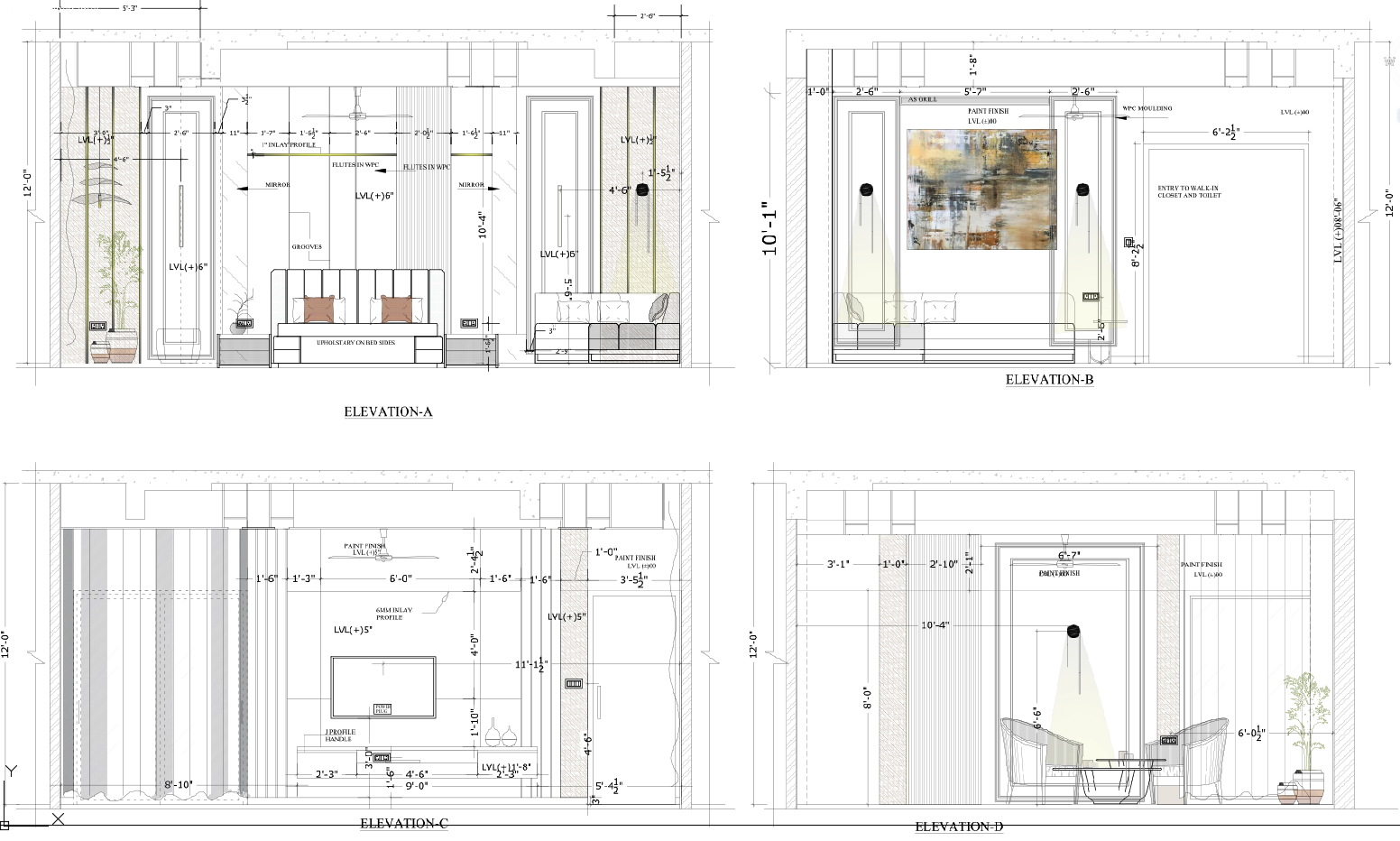
This AutoCAD DWG file presents a complete bedroom interior elevation drawing with precise architectural detailing and full dimensions. The drawing includes Elevation A, B, C, and D, showing bed back panel design, wall paneling with grooves, WPC flutes, mirror finishes, upholstery headboard, TV unit elevation, seating niche, and walk-in closet entry. Ceiling height is shown as 12 feet with finished levels clearly marked, including LVL plus 5 inches and LVL plus 6 inches.
Detailed measurements such as 6 feet bed width, 10 feet 4 inches panel height, 2 feet 6 inches side spacing, and furniture clearances are accurately annotated. The AutoCAD bedroom interior elevation drawing ensures proper alignment of lighting points, wall finishes, and joinery elements for construction execution. This DWG file is suitable for residential interior planning, contractor coordination, and detailed shop drawing submission with clean layers and readable dimensions.

Uploaded by:
Neha
mishra

