First Floor Brick Marking Masonry Layout Drawing With Dimensions
Description
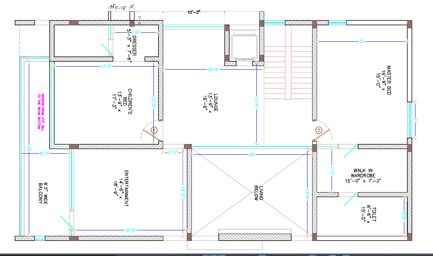
This AutoCAD DWG file presents a first-floor brick marking masonry layout drawing prepared for a proposed residential project. The drawing clearly defines internal wall positioning, brickwork alignment, and room-wise masonry layout with written dimensions in feet and inches. Key spaces include a master bedroom measuring 19'-9" x 15'-0", a children’s bedroom measuring 13'-9" x 17'-3", a lounge area of 13'-9" x 16'-9", an entertainment room measuring 14'-6" x 18'-9", and a toilet measuring 6'-6" x 15'-0". The plan also shows a 6'-3" wide balcony, dresser space of 5'-3" x 7'-6", and stair connectivity with clear wall thickness representation for accurate masonry execution.
The masonry layout highlights door openings marked as D1, wall junctions, column interfaces, and brick bonding logic aligned with structural coordination. The drawing specifies that dimensions are to be read and not scaled, ensuring site accuracy during construction. All room sizes, wall offsets, and circulation clearances are coordinated with architectural intent and service planning. This DWG file supports architects, civil engineers, interior designers, builders, and CAD professionals using AutoCAD, Revit, 3D Max, and SketchUp. It serves as a reliable reference for first-floor masonry planning, brick quantity estimation, execution sequencing, and professional residential construction documentation.
File Type:
DWG
File Size:
99 KB
Category::
Construction
Sub Category::
Construction Detail Drawings
type:
Gold

Uploaded by:
Liam
White

