Ground Floor Residential Layout Plan With 60x26 Feet Room Dimensions

Ground Floor Residential Layout Plan With 60x26 Feet Room Dimensions
Profile

Uploaded by:

Liam

White

Description

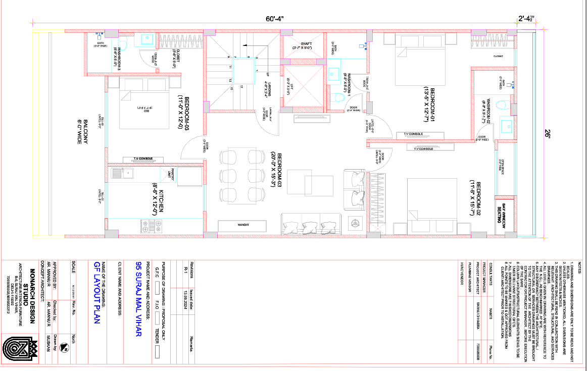
This AutoCAD DWG drawing illustrates a detailed ground-floor residential layout plan designed with an overall built dimension of approximately 60 feet 4 inches by 26 feet. The layout clearly defines internal room planning, including Bedroom 01 sized 13 feet 5 inches by 12 feet 7 inches, Bedroom 02 sized 11 feet 6 inches by 15 feet 7 inches, and a larger Bedroom 03 measuring 20 feet 0 inches by 15 feet 3 inches. Supporting spaces such as washrooms with dimensions like 8 feet 8 inches by 5 feet 1 inch and 9 feet 8 inches by 5 feet 0 inches are accurately marked. The kitchen area is detailed at 8 feet 6 inches by 12 feet 0 inches, with pantry and utility planning clearly coordinated. Door widths of 2 feet 6 inches and 3 feet 3 inches, lintel heights of 8 feet 0 inches, and sill levels are consistently annotated for construction clarity.

The layout also includes circulation and lifestyle elements such as a central lounge area, mandir space, lift shaft sized 5 feet 3 inches by 5 feet 0 inches, staircase landing of 4 feet 9 inches by 3 feet 4 inches, and balconies with a clear width of 6 feet 0 inches. Bay window seating, TV console positions, closet spaces, and balcony connections enhance functional zoning. All dimensions are provided in feet and inches and are intended to be read as written values for accuracy. This ground-floor layout drawing supports architectural planning, interior coordination, and site execution by offering precise spatial organization and room-level detailing.

Profile

Uploaded by:

Liam

White

find Latest

Related Files

WhatsApp Chat