Residential Electrical Layout Plan With Lighting And Power Points
Description
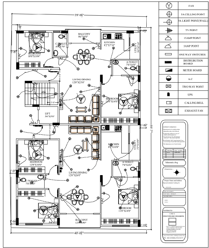
This AutoCAD DWG drawing presents a detailed residential electrical layout plan prepared for accurate electrical planning and coordination. The layout clearly illustrates lighting points, ceiling fan positions, 5-amp and 15-amp power sockets, TV points, AC points, exhaust fan locations, calling bell points, UPS connections, meter board, and distribution board placements. Living and dining areas are defined with dimensions such as 12 feet 0 inches by 26 feet 0 inches and 12 feet 0 inches by 23 feet 6 inches, ensuring correct fixture spacing and circuit planning. Bedrooms are shown with sizes including 10 feet 0 inches by 10 feet 4 inches, 11 feet 0 inches by 14 feet 0 inches, and 12 feet 0 inches by 10 feet 0 inches, with corresponding switch control routes and lighting symbols. Kitchen areas sized 8 feet 2 inches by 7 feet 10 inches and 8 feet 0 inches by 10 feet 4 inches include dedicated power points for appliances and utility coordination.
The drawing also includes balconies measuring 12 feet 0 inches by 4 feet 0 inches and 9 feet 6 inches by 4 feet 0 inches, toilets sized around 7 feet 8 inches by 4 feet 0 inches to 7 feet 8 inches by 4 feet 6 inches, and a lift core of 5 feet 6 inches by 5 feet 0 inches with associated electrical provisions. Electrical symbols and legends are clearly defined for one-way and two-way switches, ensuring ease of interpretation. All dimensions are provided in feet and inches and are intended to be followed as written for site accuracy. This electrical layout drawing supports systematic wiring design, load distribution planning, and coordinated execution for residential buildings.
File Type:
DWG
File Size:
255 KB
Category::
Electrical
Sub Category::
Architecture Electrical Plans
type:
Gold

Uploaded by:
Liam
White

