Second Floor Kitchen Lower Unit Layout With Storage And Basket Sizes
Description
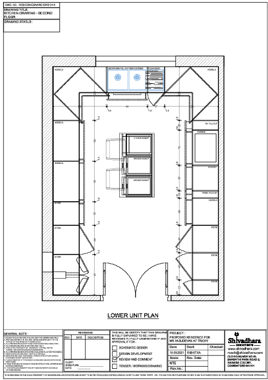
This AutoCAD DWG drawing presents a detailed second-floor kitchen lower unit layout prepared for precise interior planning and execution. The plan clearly illustrates the arrangement of base cabinets, storage modules, and functional accessories within a compact kitchen footprint. Individual unit widths such as 90 cm, 120 cm, 60 cm, 55 cm, 52 cm, 37 cm, 32 cm, and 20 cm are marked, with a standard unit depth of 1.6 units consistently noted throughout the drawing. Dedicated zones are shown for vessel storage, general store units, cutlery pullout, towel pullout, oil pullout, and burner placement, ensuring efficient workflow and accessibility. The under-sink area is detailed with pullout bins and a dustbin provision, while Aquaguard placement is clearly indicated above the sink counter for service coordination. All dimensions are provided in centimeters as written values to maintain installation accuracy.
The layout also highlights specialized storage solutions such as wicker baskets and V-S sub baskets positioned centrally for ease of use. Door swing directions, clear circulation space, and access paths around the lower units are carefully defined. The drawing excludes plaster thickness in all measurements, allowing accurate carpentry and modular kitchen fabrication. Notes emphasize that dimensions must be followed as written and coordinated with architectural and service drawings. This kitchen lower unit plan is suitable for architects, interior designers, and builders who require a precise second-floor kitchen layout with cabinet sizing, storage zoning, and functional detailing for execution and interior coordination.

Uploaded by:
Liam
White

