Office Workstation Cabinet Detail Drawing With 2110mm And 2250mm
Description
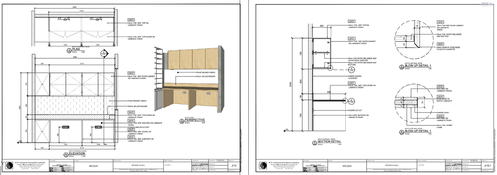
This AutoCAD DWG drawing presents a detailed office workstation cabinet layout with clearly defined plan, elevation, section, and perspective views. The drawing specifies an overall cabinet width of 2110 mm with segmented shutter modules, integrated overhead storage, and precise alignment to wall finishes. Vertical sections illustrate a total height of approximately 2250 mm from finished floor level, including upper cabinets, pinup board fabric panels, and a 150 mm splash board. Material specifications are clearly marked, showing 18 mm MDF boards with laminate finish for shutters, 33 mm MDF toplines, and MDF backing panels fixed securely to wall surfaces. Hardware placements such as concealed hinges, power and data ports, and finger joint details are accurately represented for execution clarity.
The workstation drawing also includes internal shelf arrangements, adjustable storage compartments, and ergonomic counter heights suitable for office environments. Section details highlight laminate thickness, shelf spacing, and junctions between cabinetry and wall finishes. A rendered perspective view supports visual coordination by showing the complete workstation composition with overhead units and base cabinets. Dimensions, annotations, and callouts are provided in millimetres, ensuring precise fabrication, installation, and site coordination. This drawing is suitable for architects, interior designers, and engineers who require exact cabinet construction references for professional office interiors and modular furniture planning.
File Type:
DWG
File Size:
215 KB
Category::
Interior Design
Sub Category::
Corporate Office Interior
type:
Gold

Uploaded by:
Liam
White

