Commercial Ground Floor Lighting Layout Plan With Service Areas
Description
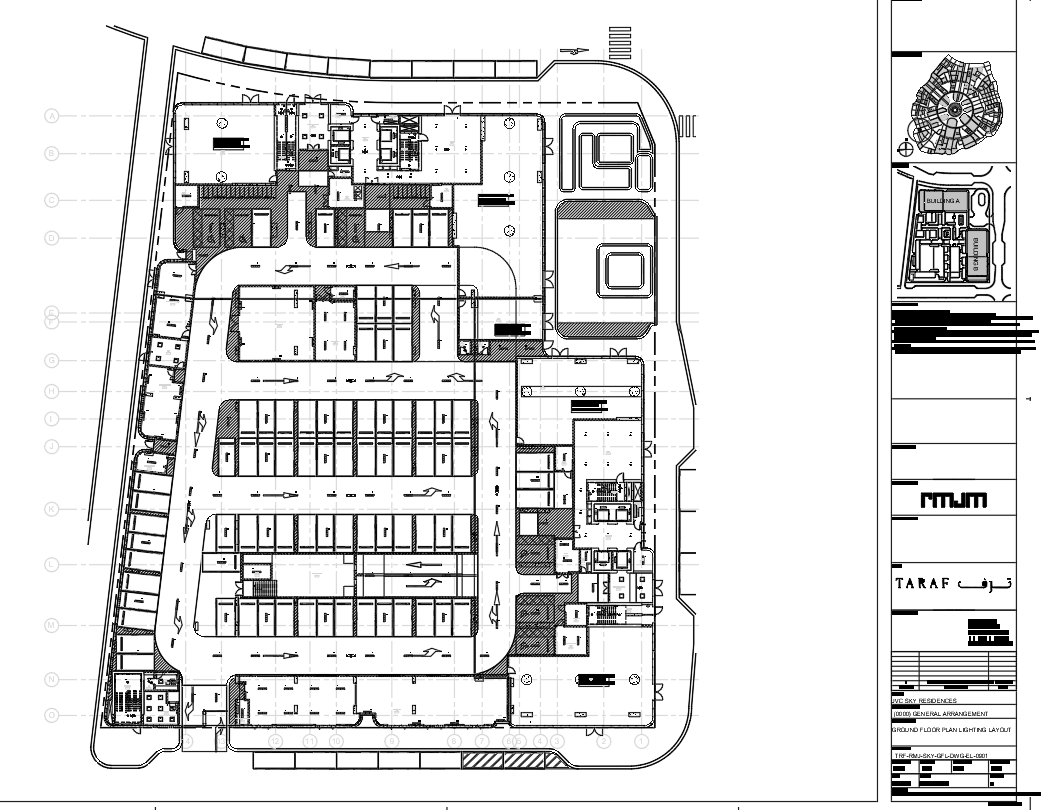
This drawing presents a detailed ground-floor lighting layout plan prepared for a large commercial mixed-use development. The layout clearly shows lighting distribution across retail units, food and beverage spaces, service corridors, lobbies, and technical rooms. Lighting symbols such as F1, F2, F2a, F3, DL9, A1, WL, and wall-mounted fixtures are systematically placed to ensure uniform illumination and functional zoning. Circulation routes, drive aisles, and access paths are highlighted with directional arrows to coordinate lighting with movement patterns. Dedicated lighting zones are defined for areas including retail shops, lift lobbies, service corridors, fire stairs, electrical rooms, pump rooms, substation, generator room, garbage rooms, and security spaces. All lighting points are aligned with the architectural grid and room boundaries for precise installation.
The plan also indicates responsibility boundaries where retail lighting is to be provided by respective tenants, ensuring coordination between base building and tenant fit-out works. Technical spaces such as MCC room, BTU rooms, PRS room, CCTV room, and central battery room are clearly identified with appropriate lighting provisions. Dimensions and references are provided in millimetres, and the drawing is marked not to be scaled. Grid references, room codes, and zoning labels support coordination with architectural and MEP drawings. This ground-floor lighting layout plan is suitable for architects, civil engineers, electrical consultants, interior designers, and builders requiring a coordinated lighting plan for commercial developments with retail, service, and back-of-house functions.

Uploaded by:
Liam
White

