Structural General Notes and Reinforcement Standard Detail Drawing
Description
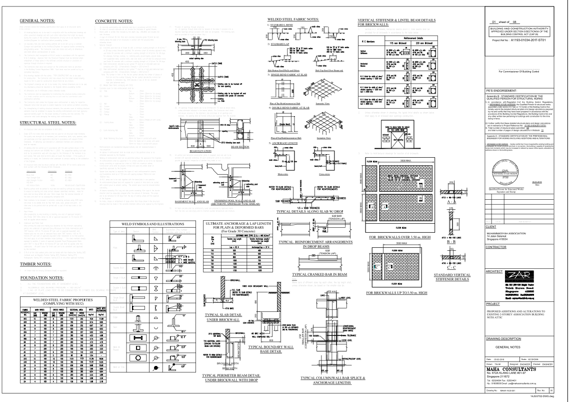
This structural general notes and reinforcement standard detail drawing presents comprehensive construction guidelines used for reinforced concrete and steel structural works. The drawing includes clearly defined general notes, concrete notes, foundation notes, timber notes, and structural steel specifications to guide execution accuracy on site. It illustrates typical slab details, perimeter beam details under brick walls, boundary wall base details, column wall bar splice and anchorage lengths, vertical stiffener and lintel beam details for brick walls up to and over 3.50 meters in height. Reinforcement arrangements for drop beams, slab drop zones, crank bars, and welded steel fabric layouts are also detailed with clear dimensions and spacing requirements.
The drawing further explains material grades such as Grade 35 and Grade 40 concrete, reinforcement bar types, cover requirements, lap lengths, anchorage lengths, welded steel fabric properties, and standard weld symbols with illustrations. Foundation notes include allowable soil bearing pressure, lean concrete thickness, pile cap and footing requirements, and curing methods. Beam widths, slab thickness references, construction joint details, and inspection procedures are provided to ensure structural safety and compliance. This detailed structural reference drawing supports architects, civil engineers, and construction professionals in understanding reinforcement coordination, execution standards, and site quality control for building projects.
File Type:
DWG
File Size:
788 KB
Category::
Construction
Sub Category::
Reinforced Cement Concrete Details
type:
Gold

Uploaded by:
Liam
White

