Proposed Roof And Loft Framing Plan With Timber Beam Details

Proposed Roof And Loft Framing Plan With Timber Beam Details
Profile

Uploaded by:

Neha

mishra

Description

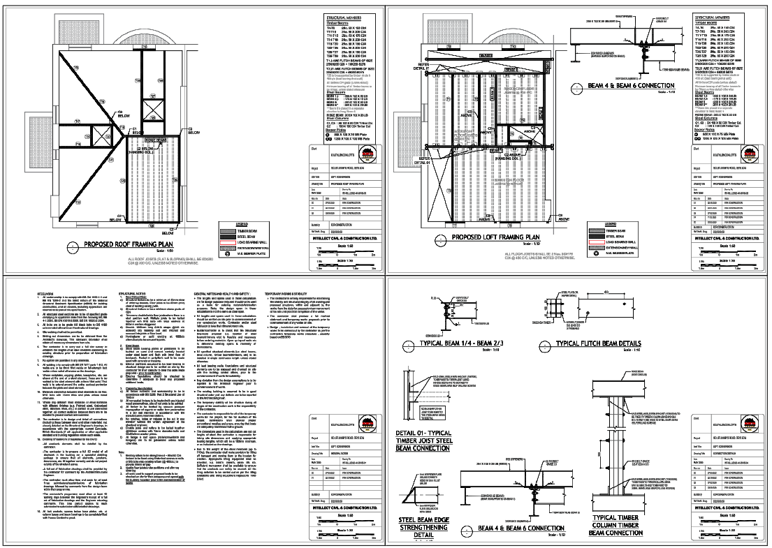
This AutoCAD drawing presents a detailed proposed roof framing plan and loft framing plan prepared with structural clarity and construction level accuracy. The roof framing plan illustrates timber beam layout with diagonal and horizontal members clearly marked, showing beam directions, support points, and junctions. Structural members are labeled with timber sizes, spacing, and alignment references to guide proper load distribution. The loft framing plan indicates beam positioning below roof level, hanging joist locations, and structural continuity between floors. Floor openings, framing edges, and beam offsets are dimensioned to support accurate execution and coordination on site.

The drawing also includes typical beam details, timber joist steel beam connections, beam-to-beam connections, and column timber beam connection details. Connection drawings show steel plate thicknesses, bolt arrangements, fixing positions, and strengthening edge details for safe load transfer. Typical beam sizes, connection scales, and reference notes are provided to ensure compliance during fabrication and installation. This AutoCAD DWG file is suitable for architects, civil engineers, builders, and structural consultants requiring clear roof and loft framing coordination, structural detailing, and timber steel connection references for residential or institutional projects.

Profile

Uploaded by:

Neha

mishra

find Latest

Related Files

WhatsApp Chat