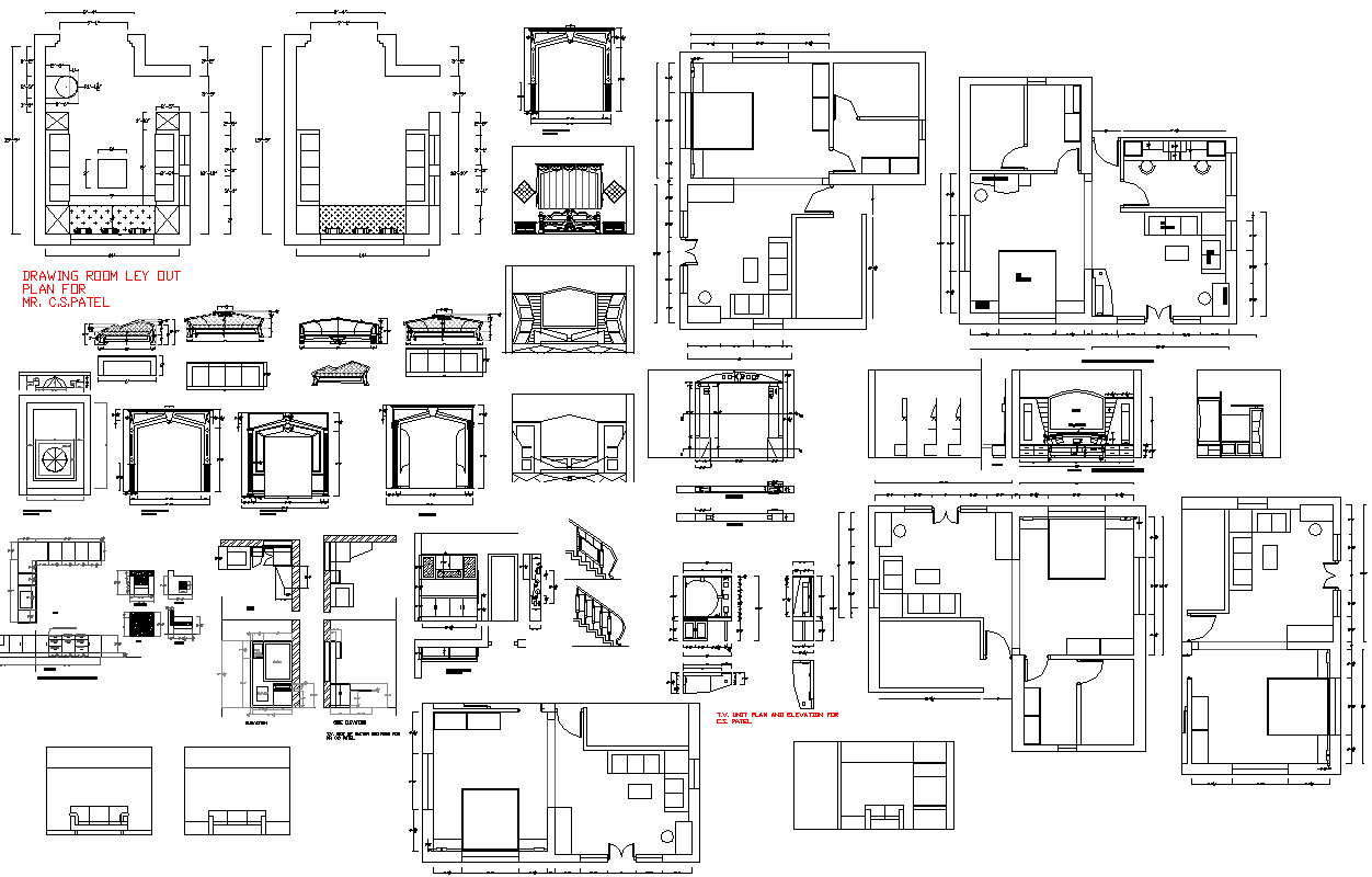
Drawing Room Interior Design
Description
Drawing Room Interior Design dwg file. Find here layout plan, ceiling design, all side elevation design with furniture detail and have the window and door design of drawing room interior design.
File Type:
DWG
File Size:
395 KB
Category::
Interior Design
Sub Category::
Living Room Interior Design
type:
Gold
Uploaded by:

