LOGIN
HOME
CATEGORIES
UPLOAD FILE
PRICING
HOUSE PLAN
ABOUT US
CONTACT US
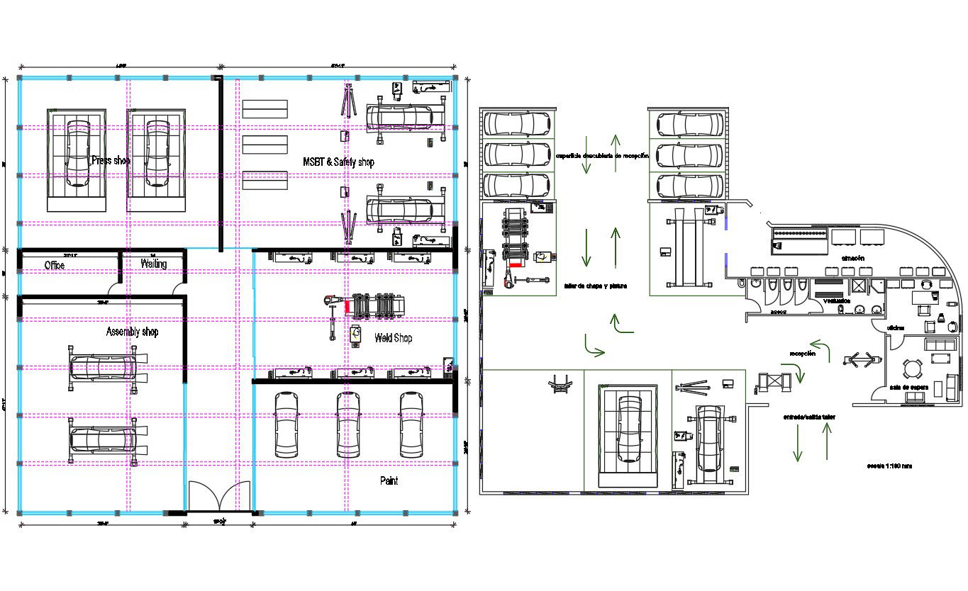
Car Garage plan dwg file
Home
Categories
Architecture
Corporate Building
Car Garage plan dwg file
Uploaded by:
Komal
View Profile
View Profile
Description
Car Garage plan dwg file. find here car parking area, car paint area, car services, car wash and much more detail in layout plan of car garage plan.
File Type:
DWG
File Size:
1.6 MB
Category::
Architecture
Sub Category::
Corporate Building
type:
Free
Uploaded by:
Komal
View Profile
Download
Add to libary
find Latest
Related
Files