LOGIN
HOME
CATEGORIES
UPLOAD FILE
PRICING
HOUSE PLAN
ABOUT US
CONTACT US
Small House plan detail dwg file
Home
Categories
Architecture
House Plan
Small House plan detail dwg file
Uploaded by:
Komal
View Profile
View Profile
Description
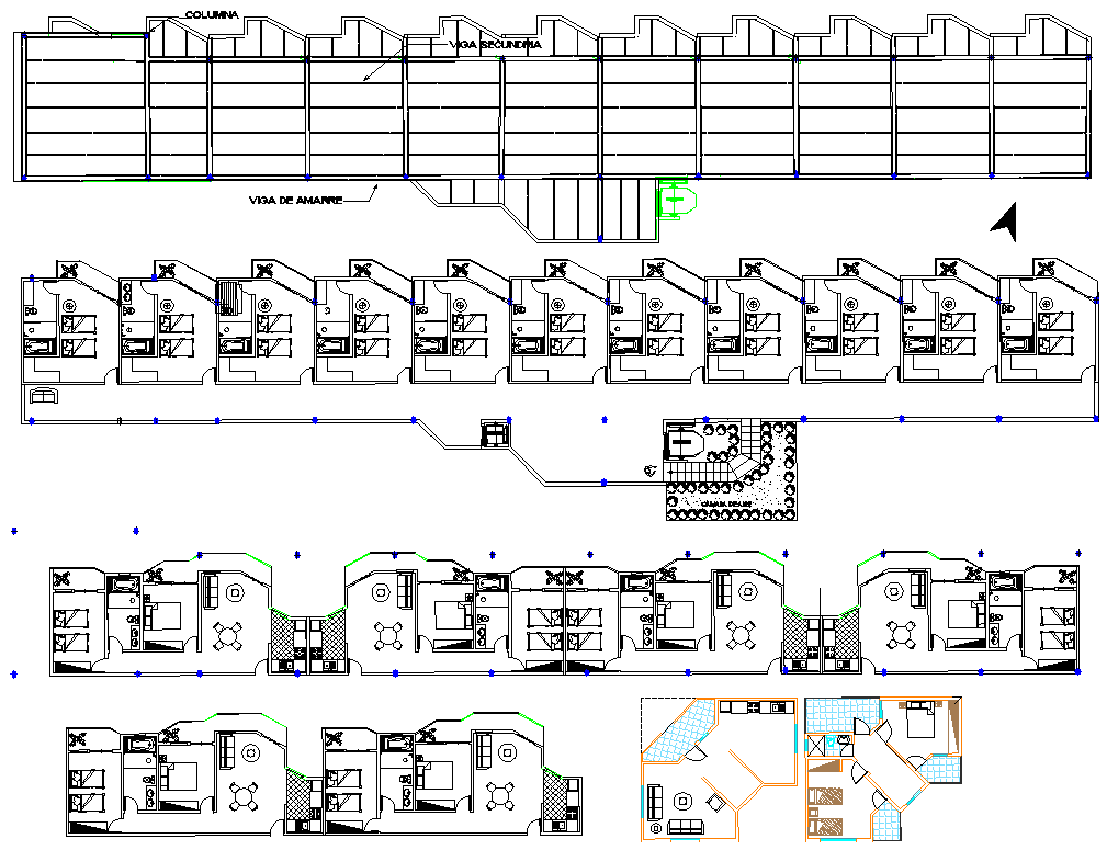
Small House plan detail dwg file. find here small house layout plan of the ground floor and first floor with furniture detailing, structure plan
File Type:
DWG
File Size:
3.3 MB
Category::
Architecture
Sub Category::
House Plan
type:
Gold
Uploaded by:
Komal
View Profile
Download
Add to libary
find Latest
Related
Files