House design 2D cad drawing is given in this cad file for design
Description
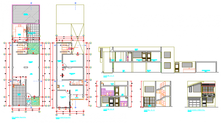
This house design 2D cad drawing presents a detailed architectural layout showing centerline plans, sectional details, and rendered elevations. The drawing displays a complete house structure with accurate proportions, precise linework, and organized dimensions that enhance construction clarity. Each layer in this DWG file reflects an architectural approach focused on balance, space utilization, and aesthetic appeal. It is ideal for professionals seeking a well-documented house plan for modern residential projects.
The 2D cad drawing offers both vertical and horizontal sectional views, allowing a clear understanding of the house’s internal structure and elevation alignment. It includes floor layouts, wall sections, and structural detailing that help in technical visualization. Suitable for architects, interior designers, and civil engineers, this file is an excellent reference for preparing design documentation, presentations, or educational use in architecture.

Uploaded by:
Fernando
Zapata

