LOGIN
HOME
CATEGORIES
UPLOAD FILE
PRICING
HOUSE PLAN
ABOUT US
CONTACT US
Corporate Project detail view autocad file
Home
Categories
Architecture
Corporate Building
Corporate Project detail view autocad file
Uploaded by:
Komal
View Profile
View Profile
Description
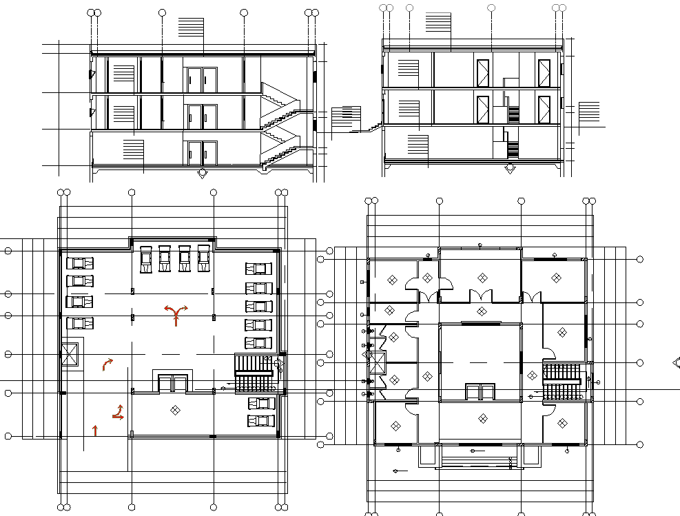
Corporate Project detail view autocad file. the architecture layout plan, basement vehicle parking and elevation design with much more detailing in autocad format.
File Type:
DWG
File Size:
274 KB
Category::
Architecture
Sub Category::
Corporate Building
type:
Gold
Uploaded by:
Komal
View Profile
Download
Add to libary
find Latest
Related
Files