LOGIN
HOME
CATEGORIES
UPLOAD FILE
PRICING
HOUSE PLAN
ABOUT US
CONTACT US
Foundation plan and Beam detail
Home
Categories
Structure
Beam And Lintel
Foundation plan and Beam detail
Uploaded by:
Komal
View Profile
View Profile
Description
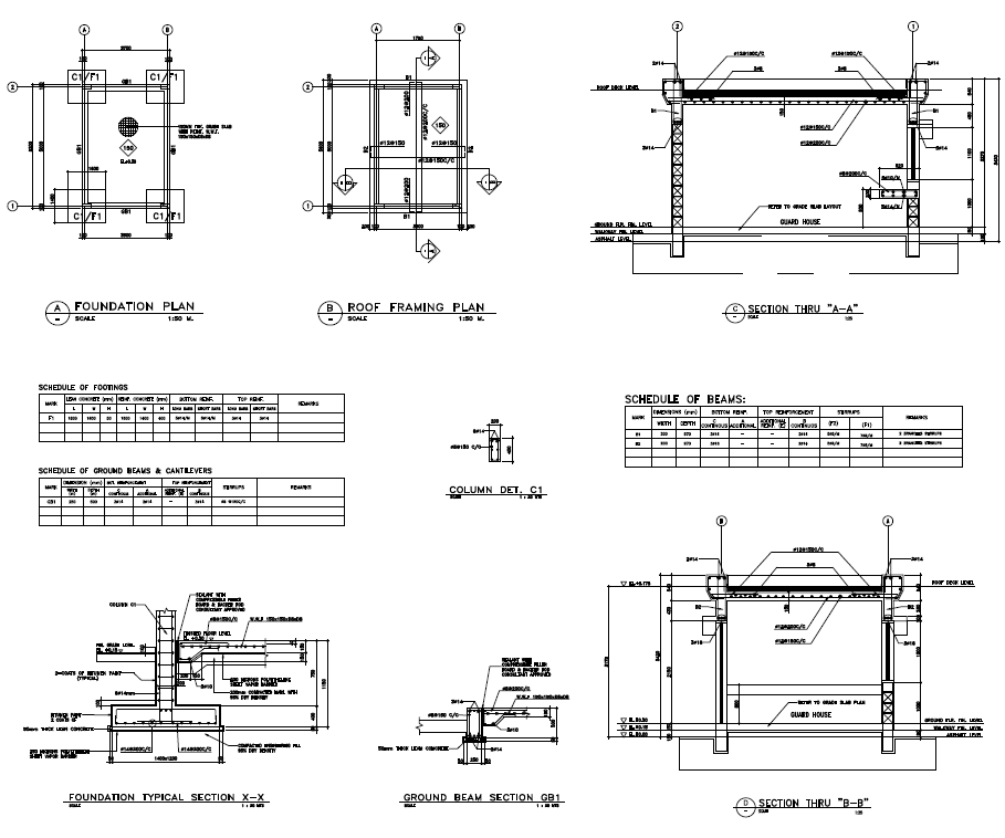
Foundation plan and Beam detail pdf file. ground beam section plan, roof framing plan, foundation typical section plan and column detail.
File Type:
PDF
File Size:
223 KB
Category::
Structure
Sub Category::
Beam And Lintel
type:
Free
Uploaded by:
Komal
View Profile
Download
Add to libary
find Latest
Related
Files